Image of Cladding Aluminium Deco Castellated Vertical Wenge Material
 Image of Cladding Aluminium Deco Castellated Vertical Wenge Material
3D Presentation Image of Cladding Aluminium Deco Castellated Vertical Wenge Material

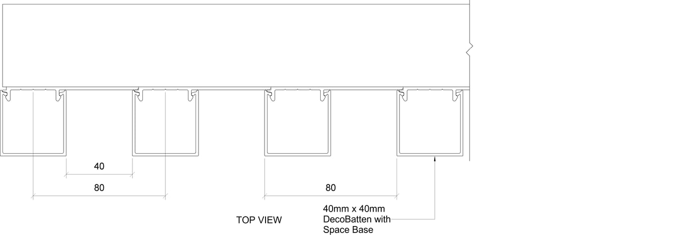
Cladding Aluminium Deco Castellated Vertical Wenge Material

Enjoy DecoClad's® enduring beauty in the bush, by the beach or in full sun. Effortless to install and maintain, DecoClad® is the ultimate in exterior cladding Finish:Wenge

Advanced Materials
Created By IGS BIM Solutions
Bulk Download Options
Manufacturer
Model
Uniclass2015Title
Cladding and lining panels