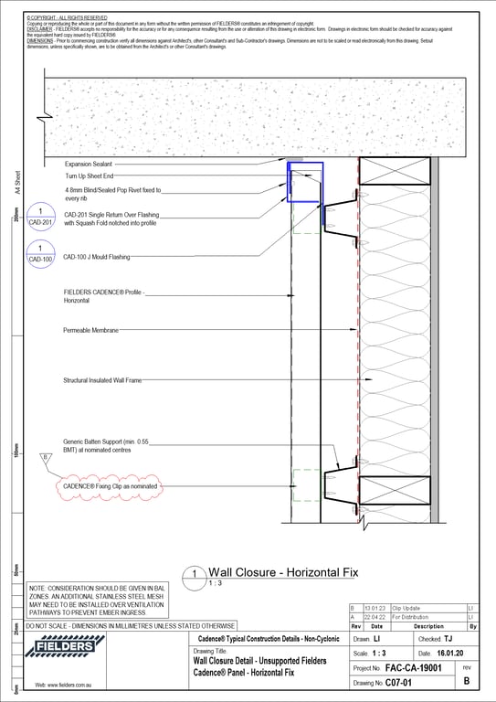
C07-01 - Wall Closure Detail - Unsupported Fielders Cadence® Panel - Horizontal Fix

 Image of C07-01 - Wall Closure Detail - Unsupported Fielders Cadence® Panel - Horizontal Fix

Detail Download. 2D Details / Drafting Views accompany the 3D content and allow for detailed technical construction documentation.