• Home
  • Content
  • For Manufacturers
  • For Designers
  • Plug-In
  • About
  • News
  • Contact
  • Content
  • Cemintel
  • Cladding
  • Fibre Cement
  • Barestone Internal - Panel Installation 3

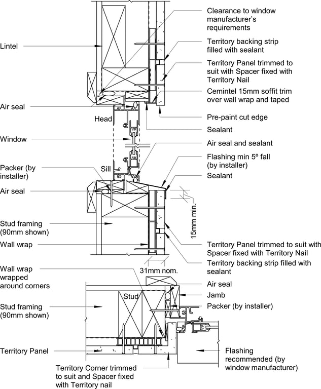
Barestone Internal - Panel Installation 3

 Image of Barestone Internal - Panel Installation 3

Detail Download. 2D Details / Drafting Views accompany the 3D content and allow for detailed technical construction documentation.

Cemintel Logo

Connect with the Manufacturer

RESEARCH PRODUCT

Related content

Navigate to AUS-BRSI-008 - HORIZONTAL PANEL JOIN
AUS-BRSI-008 - HORIZONTAL PANEL JOIN
Navigate to AUS-SURE-044 - WALL WRAP INSTALLATION AT DRAIN PENETRATION – TIMBER OR STEEL FRAMING
AUS-SURE-044 - WALL WRAP INSTALLATION AT DRAIN PENETRATION – TIMBER OR STEEL FRAMING
Navigate to AUS-SURE-006 - HORIZONTAL JOINT
AUS-SURE-006 - HORIZONTAL JOINT
Navigate to AUS-TERV-048 - WALL WRAP INSTALLATION AT DRAIN PENETRATION – TIMBER OR STEEL FRAMING
AUS-TERV-048 - WALL WRAP INSTALLATION AT DRAIN PENETRATION – TIMBER OR STEEL FRAMING
Navigate to Barestone Surround Timber Battens - Typical Window Head, Jamb and Sill
Barestone Surround Timber Battens - Typical Window Head, Jamb and Sill
Navigate to AUS-BRSI-021 - INTERNAL CORNER
AUS-BRSI-021 - INTERNAL CORNER
Navigate to Territory Horizontal - Base Detail – 90mm Framing
Territory Horizontal - Base Detail – 90mm Framing
Navigate to AUS-TERV-010 - INTERNAL CORNER DETAIL – WITH BACKING STRIP AND COLOURED SEALANT
AUS-TERV-010 - INTERNAL CORNER DETAIL – WITH BACKING STRIP AND COLOURED SEALANT
 
 

Footer

Start downloading quality free BIM content!

X
Facebook
LinkedIn
Instagram
REGISTER FREE NOW

Explore

  • Home
  • Search: Products
  • Search: Brands
  • For Manufacturers
  • For Designers
  • About Us
  • Contact Us

Categories

  • Plumbing Fixtures
  • Washroom Accessories
  • Lighting
  • Materials
  • Furniture
  • Piping

© 2026 BIMcontent.com. All rights reserved.

|

Privacy Policy

|

Terms of Use
Tags, click a tag to view all matching products
Get the BIMcontent Plug-In for Revit® to direct insert
Add to List