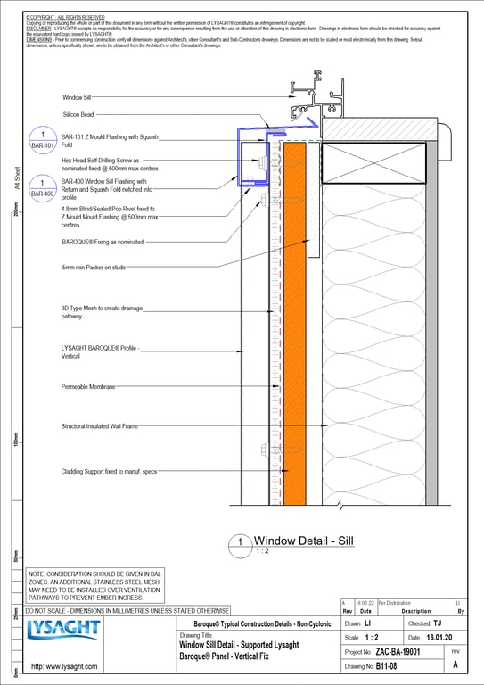
B11-08 - Window Sill Detail - Supported Lysaght Baroque® Panel - Vertical Fix

 Image of B11-08 - Window Sill Detail - Supported Lysaght Baroque® Panel - Vertical Fix

Detail Download. 2D Details / Drafting Views accompany the 3D content and allow for detailed technical construction documentation.

Lysaght Logo

Connect with the Manufacturer

RESEARCH PRODUCT