• Home
  • Content
  • For Manufacturers
  • For Designers
  • Plug-In
  • About
  • News
  • Contact
  • Content
  • James Hardie
  • Cladding
  • Grooved
  • AXON Timber DF Vertical Butt Joint

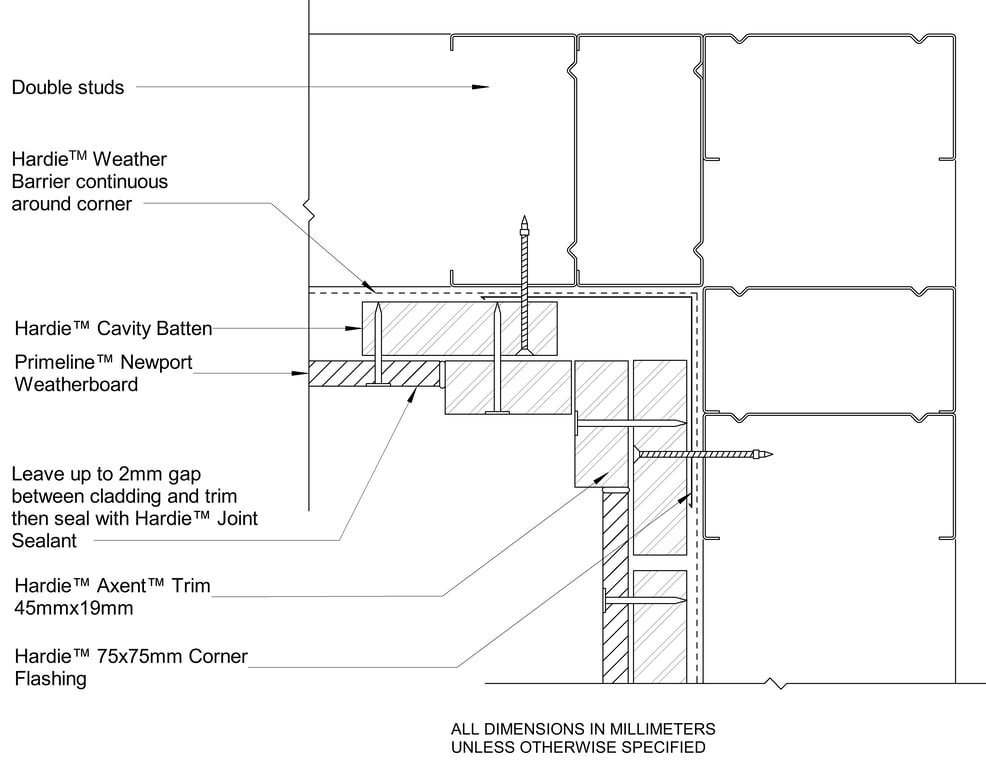
AXON Timber DF Vertical Butt Joint

 Image of AXON Timber DF Vertical Butt Joint

Detail Download. 2D Details / Drafting Views accompany the 3D content and allow for detailed technical construction documentation.

James Hardie Logo

Connect with the Manufacturer

RESEARCH PRODUCT

Related content

Navigate to PRLN Steel CFFC Internal Axent Trim Corner Option
PRLN Steel CFFC Internal Axent Trim Corner Option
Navigate to AXON-HBC-HFTC-MATRIX to LINEA CF Internal Corner Horizontal Junction
AXON-HBC-HFTC-MATRIX to LINEA CF Internal Corner Horizontal Junction
Navigate to Cladding Board JamesHardie StriaCladdingSmooth Horizontal 325 Monument
Cladding Board JamesHardie StriaCladdingSmooth Horizontal 325 Monument
Navigate to Cladding Textured JamesHardie HardieBrushedConcreteCladding NaturalWhite
Cladding Textured JamesHardie HardieBrushedConcreteCladding NaturalWhite
Navigate to AU-HBC-S-CFTB-006 - VERTICAL BUTT JOINT
AU-HBC-S-CFTB-006 - VERTICAL BUTT JOINT
Navigate to OBLIQUE Timber CFFC On-Stud Jointing Of Batten On 45mm Timber Frames
OBLIQUE Timber CFFC On-Stud Jointing Of Batten On 45mm Timber Frames
Navigate to AU-STRIAFT-S-CFTB-003 - HORIZONTAL JUNCTION
AU-STRIAFT-S-CFTB-003 - HORIZONTAL JUNCTION
Navigate to AU-AXON-T-DF-017 - MASONRY (E-G- BRICK) ABUTMENT DETAIL
AU-AXON-T-DF-017 - MASONRY (E-G- BRICK) ABUTMENT DETAIL
 
 

Footer

Start downloading quality free BIM content!

X
Facebook
LinkedIn
Instagram
REGISTER FREE NOW

Explore

  • Home
  • Search: Products
  • Search: Brands
  • For Manufacturers
  • For Designers
  • About Us
  • Contact Us

Categories

  • Plumbing Fixtures
  • Washroom Accessories
  • Lighting
  • Materials
  • Furniture
  • Piping

© 2026 BIMcontent.com. All rights reserved.

|

Privacy Policy

|

Terms of Use
Tags, click a tag to view all matching products
Get the BIMcontent Plug-In for Revit® to direct insert
Add to List