• Home
  • Content
  • For Manufacturers
  • For Designers
  • Plug-In
  • About
  • News
  • Contact
  • Content
  • James Hardie
  • Cladding
  • Grooved
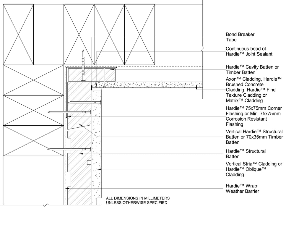
  • AXON Timber DF Trim Corner Option

AXON Timber DF Trim Corner Option

 Image of AXON Timber DF Trim Corner Option

Detail Download. 2D Details / Drafting Views accompany the 3D content and allow for detailed technical construction documentation.

James Hardie Logo

Connect with the Manufacturer

RESEARCH PRODUCT

Related content

Navigate to AXON-HBC-HFTC-MATRIX to OBLIQUE-STRIA VERTICAL CF Internal Corner Vertical Junction
AXON-HBC-HFTC-MATRIX to OBLIQUE-STRIA VERTICAL CF Internal Corner Vertical Junction
Navigate to OBLIQUE Timber CFFC On-Stud Jointing Of Battens
OBLIQUE Timber CFFC On-Stud Jointing Of Battens
Navigate to OBLIQUE Steel CFTB External Box Corner
OBLIQUE Steel CFTB External Box Corner
Navigate to AU-AXON-T-DF-003 - WINDOW JAMB - TRIM
AU-AXON-T-DF-003 - WINDOW JAMB - TRIM
Navigate to LINEA Steel DF Trim External Corner
LINEA Steel DF Trim External Corner
Navigate to AXON-HBC-HFTC-MATRIX to AXON-HBC-HFTC-MATRIX CF Internal Corner Horizontal Junction
AXON-HBC-HFTC-MATRIX to AXON-HBC-HFTC-MATRIX CF Internal Corner Horizontal Junction
Navigate to Cladding Board JamesHardie StriaCladdingSmooth Vertical 405 TimelessGrey
Cladding Board JamesHardie StriaCladdingSmooth Vertical 405 TimelessGrey
Navigate to AU-HFTC-S-CFFC-011 - SEALANT FILL OPTION - CAVITY TRIM
AU-HFTC-S-CFFC-011 - SEALANT FILL OPTION - CAVITY TRIM
 
 

Footer

Start downloading quality free BIM content!

X
Facebook
LinkedIn
Instagram
REGISTER FREE NOW

Explore

  • Home
  • Search: Products
  • Search: Brands
  • For Manufacturers
  • For Designers
  • About Us
  • Contact Us

Categories

  • Plumbing Fixtures
  • Washroom Accessories
  • Lighting
  • Materials
  • Furniture
  • Piping

© 2026 BIMcontent.com. All rights reserved.

|

Privacy Policy

|

Terms of Use
Tags, click a tag to view all matching products
Get the BIMcontent Plug-In for Revit® to direct insert
Add to List