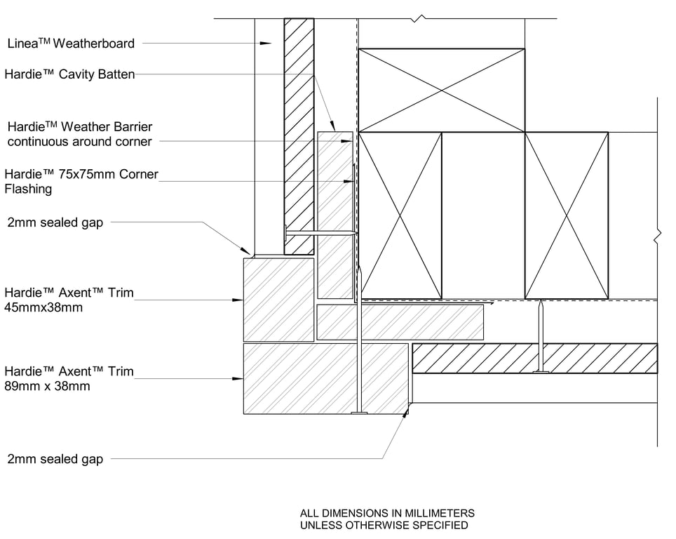
AXON Timber CFTB Aluminium External Square Corner

 Image of AXON Timber CFTB Aluminium External Square Corner

Detail Download. 2D Details / Drafting Views accompany the 3D content and allow for detailed technical construction documentation.