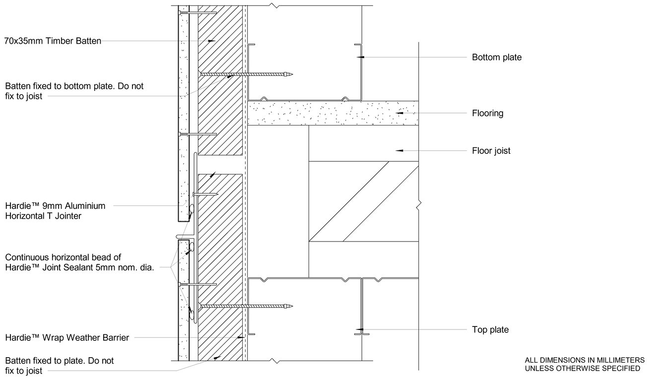
AXON Steel CFTB Window Sill And Head

 Image of AXON Steel CFTB Window Sill And Head

Detail Download. 2D Details / Drafting Views accompany the 3D content and allow for detailed technical construction documentation.