AXON Steel CFFC Snap On Internal Corner Option

 Image of AXON Steel CFFC Snap On Internal Corner Option

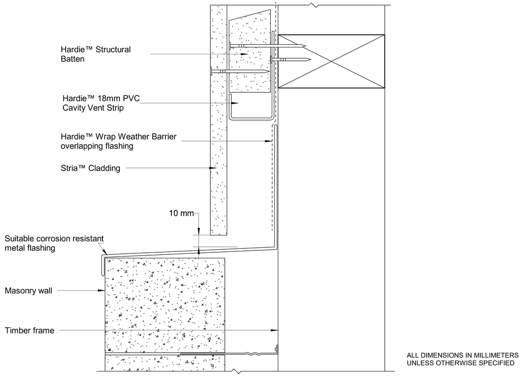
Detail Download. 2D Details / Drafting Views accompany the 3D content and allow for detailed technical construction documentation.