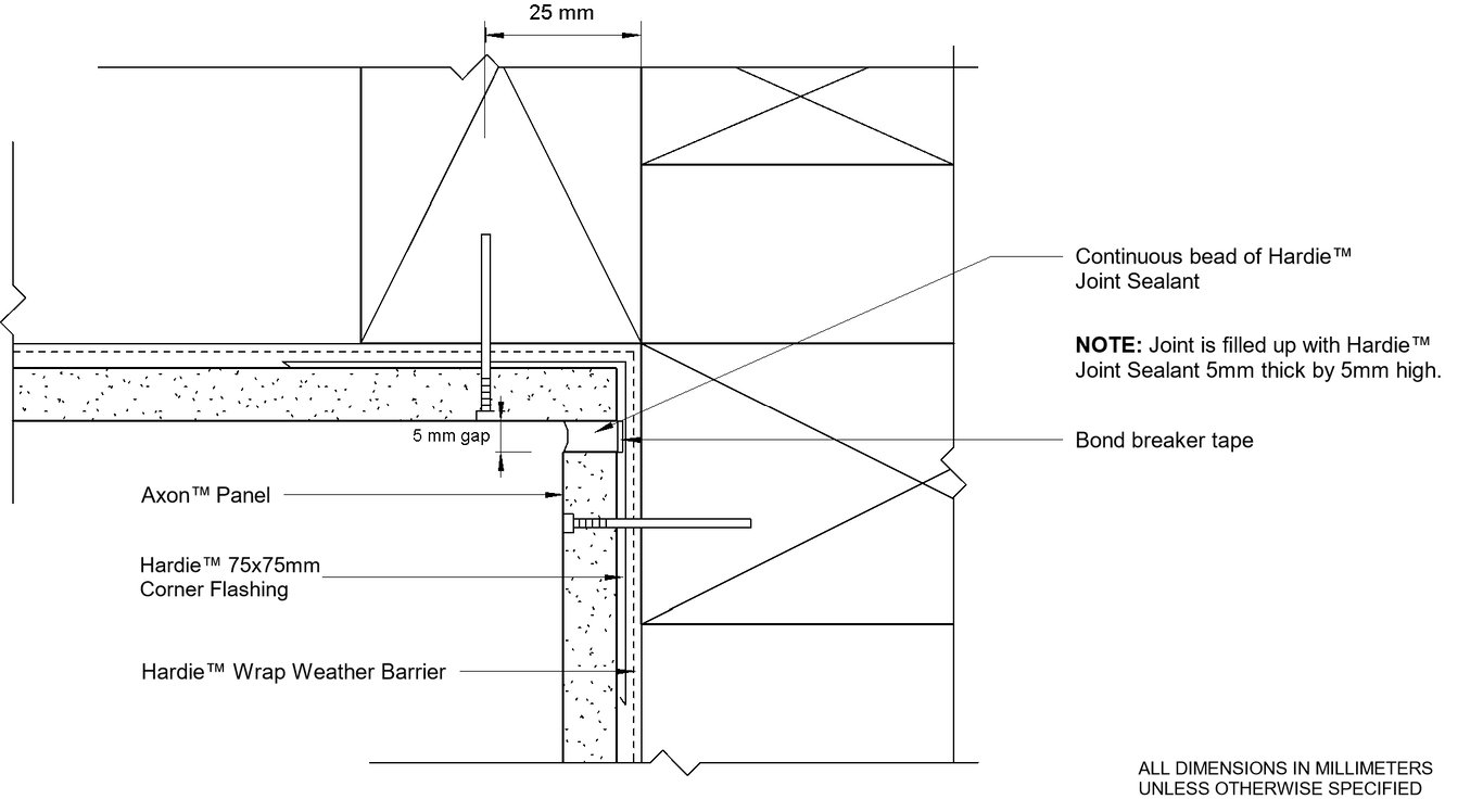
AXON-HBC-HFTC-MATRIX to OBLIQUE-STRIA VERTICAL CF Upper Floor Junction

 Image of AXON-HBC-HFTC-MATRIX to OBLIQUE-STRIA VERTICAL CF Upper Floor Junction

Detail Download. 2D Details / Drafting Views accompany the 3D content and allow for detailed technical construction documentation.

James Hardie Logo

Connect with the Manufacturer

RESEARCH PRODUCT