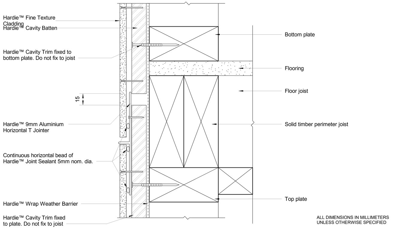
AXON-HBC-HFTC-MATRIX to OBLIQUE-STRIA HORIZONTAL DF Internal Corner Vertical Junction

 Image of AXON-HBC-HFTC-MATRIX to OBLIQUE-STRIA HORIZONTAL DF Internal Corner Vertical Junction

Detail Download. 2D Details / Drafting Views accompany the 3D content and allow for detailed technical construction documentation.