• Home
  • Content
  • For Manufacturers
  • For Designers
  • Plug-In
  • About
  • News
  • Contact
  • Content
  • Cemintel
  • Cladding
  • Fibre Cement
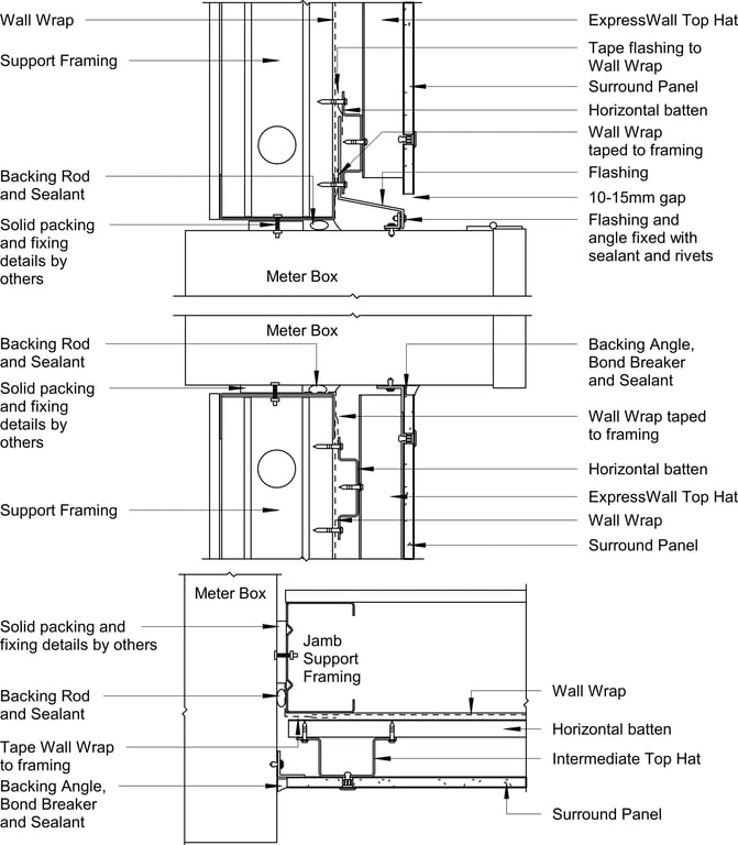
  • AUS-TERV-037 - JUNCTION WITH MASONRY OFFSET

AUS-TERV-037 - JUNCTION WITH MASONRY OFFSET

 Image of AUS-TERV-037 - JUNCTION WITH MASONRY OFFSET

Detail Download. 2D Details / Drafting Views accompany the 3D content and allow for detailed technical construction documentation.

Cemintel Logo

Connect with the Manufacturer

RESEARCH PRODUCT

Related content

Navigate to AUS-TERH-009-01 - SECOND STOREY JUNCTION WITH MASONRY, BRICK VENEER OR HEBEL PANELS – CANTILEVERED FRAMING
AUS-TERH-009-01 - SECOND STOREY JUNCTION WITH MASONRY, BRICK VENEER OR HEBEL PANELS – CANTILEVERED FRAMING
Navigate to AUS-SURE-001 - TYPICAL SURROUND WALL SYSTEM CROSS SECTION FOR STEEL FRAMING
AUS-SURE-001 - TYPICAL SURROUND WALL SYSTEM CROSS SECTION FOR STEEL FRAMING
Navigate to AUS-TERI-020-02 - JUNCTION OFFSET MASONRY WALL – PLAN VIEW
AUS-TERI-020-02 - JUNCTION OFFSET MASONRY WALL – PLAN VIEW
Navigate to AUS-SURI-005 - STEEL STUD - SHEET JOINT LAYOUT
AUS-SURI-005 - STEEL STUD - SHEET JOINT LAYOUT
Navigate to AUS-SURI-022 - INTERNAL CORNER
AUS-SURI-022 - INTERNAL CORNER
Navigate to Territory Internal - Internal Corner with Backing Rod and Coloured Sealant – Plan View
Territory Internal - Internal Corner with Backing Rod and Coloured Sealant – Plan View
Navigate to AUS-TERH-041-06 - COMPOSITE CEILING
AUS-TERH-041-06 - COMPOSITE CEILING
Navigate to AUS-TERH-022-03 - PARAPET WALL JUNCTION – STAGE 1
AUS-TERH-022-03 - PARAPET WALL JUNCTION – STAGE 1
 
 

Footer

Start downloading quality free BIM content!

X
Facebook
LinkedIn
Instagram
REGISTER FREE NOW

Explore

  • Home
  • Search: Products
  • Search: Brands
  • For Manufacturers
  • For Designers
  • About Us
  • Contact Us

Categories

  • Plumbing Fixtures
  • Washroom Accessories
  • Lighting
  • Materials
  • Furniture
  • Piping

© 2026 BIMcontent.com. All rights reserved.

|

Privacy Policy

|

Terms of Use
Tags, click a tag to view all matching products
Get the BIMcontent Plug-In for Revit® to direct insert
Add to List