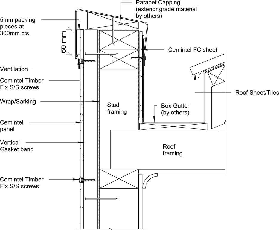
AUS-TERV-002 - TYPICAL TERRITORY SYSTEM CROSS SECTION - ELEVATION & TYPICAL FACE NAILING AT SQUARE EDGE JOINT - ELEVATION

 Image of AUS-TERV-002 - TYPICAL TERRITORY SYSTEM CROSS SECTION - ELEVATION & TYPICAL FACE NAILING AT SQUARE EDGE JOINT - ELEVATION

Detail Download. 2D Details / Drafting Views accompany the 3D content and allow for detailed technical construction documentation.