• Home
  • Content
  • For Manufacturers
  • For Designers
  • Plug-In
  • About
  • News
  • Contact
  • Content
  • Cemintel
  • Cladding
  • Fibre Cement
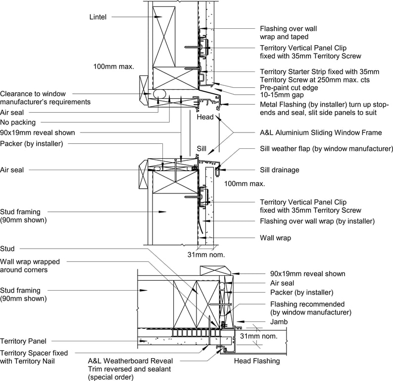
  • AUS-TERH-020-05 - TREND QUANTUM XP ALUMINIUM SLIDING WINDOW WITH WEATHERBOARD REVEAL CLIP E482

AUS-TERH-020-05 - TREND QUANTUM XP ALUMINIUM SLIDING WINDOW WITH WEATHERBOARD REVEAL CLIP E482

 Image of AUS-TERH-020-05 - TREND QUANTUM XP ALUMINIUM SLIDING WINDOW WITH WEATHERBOARD REVEAL CLIP E482

Detail Download. 2D Details / Drafting Views accompany the 3D content and allow for detailed technical construction documentation.

Cemintel Logo

Connect with the Manufacturer

RESEARCH PRODUCT

Related content

Navigate to AUS-TERH-049 - VERTICAL WALL WRAP JUNCTION – OVERLAPPED SINGLE STRIP JOIN
AUS-TERH-049 - VERTICAL WALL WRAP JUNCTION – OVERLAPPED SINGLE STRIP JOIN
Navigate to AUS-BRSE-037-04 - VERTICAL WALL WRAP JUNCTION – NO LAP DOUBLE WASHER
AUS-BRSE-037-04 - VERTICAL WALL WRAP JUNCTION – NO LAP DOUBLE WASHER
Navigate to Territory Horizontal - Territory Ceiling
Territory Horizontal - Territory Ceiling
Navigate to AUS-TERV-014-02 - EDGE BEAM DETAILL – VERTICAL TOPHAT 2
AUS-TERV-014-02 - EDGE BEAM DETAILL – VERTICAL TOPHAT 2
Navigate to AUS-TERV-034 - BASE DETAIL
AUS-TERV-034 - BASE DETAIL
Navigate to AUS-TERH-041-01 - INTERSTOREY JUNCTION WITH TERRITORY CEILING
AUS-TERH-041-01 - INTERSTOREY JUNCTION WITH TERRITORY CEILING
Navigate to AUS-TERH-018-01 - FRAMING AND CONTROL JOINT DETAIL AT EDGE BEAM – EDGE BEAM HEIGHT LESS THAN 450MM (CONTINUOUS WALL WRAP- SARKING METHOD)
AUS-TERH-018-01 - FRAMING AND CONTROL JOINT DETAIL AT EDGE BEAM – EDGE BEAM HEIGHT LESS THAN 450MM (CONTINUOUS WALL WRAP- SARKING METHOD)
Navigate to AUS-BRSI-011 - PANEL INSTALLATION
AUS-BRSI-011 - PANEL INSTALLATION
 
 

Footer

Start downloading quality free BIM content!

X
Facebook
LinkedIn
Instagram
REGISTER FREE NOW

Explore

  • Home
  • Search: Products
  • Search: Brands
  • For Manufacturers
  • For Designers
  • About Us
  • Contact Us

Categories

  • Plumbing Fixtures
  • Washroom Accessories
  • Lighting
  • Materials
  • Furniture
  • Piping

© 2026 BIMcontent.com. All rights reserved.

|

Privacy Policy

|

Terms of Use
Tags, click a tag to view all matching products
Get the BIMcontent Plug-In for Revit® to direct insert
Add to List