• Home
  • Content
  • For Manufacturers
  • For Designers
  • Plug-In
  • About
  • News
  • Contact
  • Content
  • Cemintel
  • Cladding
  • Fibre Cement
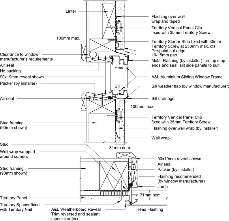
  • AUS-TERH-017-02 - JUNCTION – RECESSED WITH BRICK VENEER

AUS-TERH-017-02 - JUNCTION – RECESSED WITH BRICK VENEER

 Image of AUS-TERH-017-02 - JUNCTION – RECESSED WITH BRICK VENEER

Detail Download. 2D Details / Drafting Views accompany the 3D content and allow for detailed technical construction documentation.

Cemintel Logo

Connect with the Manufacturer

RESEARCH PRODUCT

Related content

Navigate to AUS-SURE-007 - HORIZONTAL JOINT - SEALED
AUS-SURE-007 - HORIZONTAL JOINT - SEALED
Navigate to Territory Vertical - A&L Aluminium Awning Window with Weatherboard Trim
Territory Vertical - A&L Aluminium Awning Window with Weatherboard Trim
Navigate to Territory Horizontal - Typical Stegbar Window
Territory Horizontal - Typical Stegbar Window
Navigate to AUS-TERH-018-02 - EDGE BEAM DETAIL – HORIZONTAL TOP HAT
AUS-TERH-018-02 - EDGE BEAM DETAIL – HORIZONTAL TOP HAT
Navigate to AUS-TERH-013-01 - SOFFIT DETAIL – WITH COLOURED EAVES TRIM
AUS-TERH-013-01 - SOFFIT DETAIL – WITH COLOURED EAVES TRIM
Navigate to Territory Vertical - Internal Corner – Wall Wrap Continuous
Territory Vertical - Internal Corner – Wall Wrap Continuous
Navigate to Barestone Internal - Cemintel Centralising Tool for Rivet Fixing
Barestone Internal - Cemintel Centralising Tool for Rivet Fixing
Navigate to Barestone External - Vertical Wall Wrap Junction – Overlapped Single Strip Join
Barestone External - Vertical Wall Wrap Junction – Overlapped Single Strip Join
 
 

Footer

Start downloading quality free BIM content!

X
Facebook
LinkedIn
Instagram
REGISTER FREE NOW

Explore

  • Home
  • Search: Products
  • Search: Brands
  • For Manufacturers
  • For Designers
  • About Us
  • Contact Us

Categories

  • Plumbing Fixtures
  • Washroom Accessories
  • Lighting
  • Materials
  • Furniture
  • Piping

© 2026 BIMcontent.com. All rights reserved.

|

Privacy Policy

|

Terms of Use
Tags, click a tag to view all matching products
Get the BIMcontent Plug-In for Revit® to direct insert
Add to List