• Home
  • Content
  • For Manufacturers
  • For Designers
  • Plug-In
  • About
  • News
  • Contact
  • Content
  • Cemintel
  • Cladding
  • Fibre Cement
  • AUS-SURE-043-01 - VERTICAL WALL WRAP JUNCTION – OVERLAPPED DOUBLE STRIP JOIN

AUS-SURE-043-01 - VERTICAL WALL WRAP JUNCTION – OVERLAPPED DOUBLE STRIP JOIN

 Image of AUS-SURE-043-01 - VERTICAL WALL WRAP JUNCTION – OVERLAPPED DOUBLE STRIP JOIN

Detail Download. 2D Details / Drafting Views accompany the 3D content and allow for detailed technical construction documentation.

Cemintel Logo

Connect with the Manufacturer

RESEARCH PRODUCT

Related content

Navigate to Territory Horizontal - Typical Stegbar Sliding or Entry Door
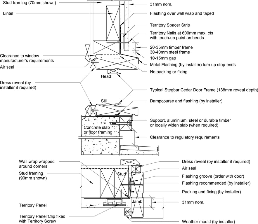
Territory Horizontal - Typical Stegbar Sliding or Entry Door
Navigate to Barestone External - Typical Window Installation
Barestone External - Typical Window Installation
Navigate to Territory Horizontal - Soffit Detail – with Coloured Eaves Trim 1
Territory Horizontal - Soffit Detail – with Coloured Eaves Trim 1
Navigate to AUS-TERH-022-06 - TYPICAL BALCONY DETAIL
AUS-TERH-022-06 - TYPICAL BALCONY DETAIL
Navigate to AUS-TERH-044-02 - EXTERNAL CORNER – WALL WRAP OVERLAPPED
AUS-TERH-044-02 - EXTERNAL CORNER – WALL WRAP OVERLAPPED
Navigate to Surround External - Vertical Joint Detail – Rivet Fixed
Surround External - Vertical Joint Detail – Rivet Fixed
Navigate to Territory Horizontal - Typical Territory System Cross Section for Timber Framing – Elevation
Territory Horizontal - Typical Territory System Cross Section for Timber Framing – Elevation
Navigate to AUS-TERH-014 - HORIZONTAL CONTROL JOINT
AUS-TERH-014 - HORIZONTAL CONTROL JOINT
 
 

Footer

Start downloading quality free BIM content!

X
Facebook
LinkedIn
Instagram
REGISTER FREE NOW

Explore

  • Home
  • Search: Products
  • Search: Brands
  • For Manufacturers
  • For Designers
  • About Us
  • Contact Us

Categories

  • Plumbing Fixtures
  • Washroom Accessories
  • Lighting
  • Materials
  • Furniture
  • Piping

© 2026 BIMcontent.com. All rights reserved.

|

Privacy Policy

|

Terms of Use
Tags, click a tag to view all matching products
Get the BIMcontent Plug-In for Revit® to direct insert
Add to List