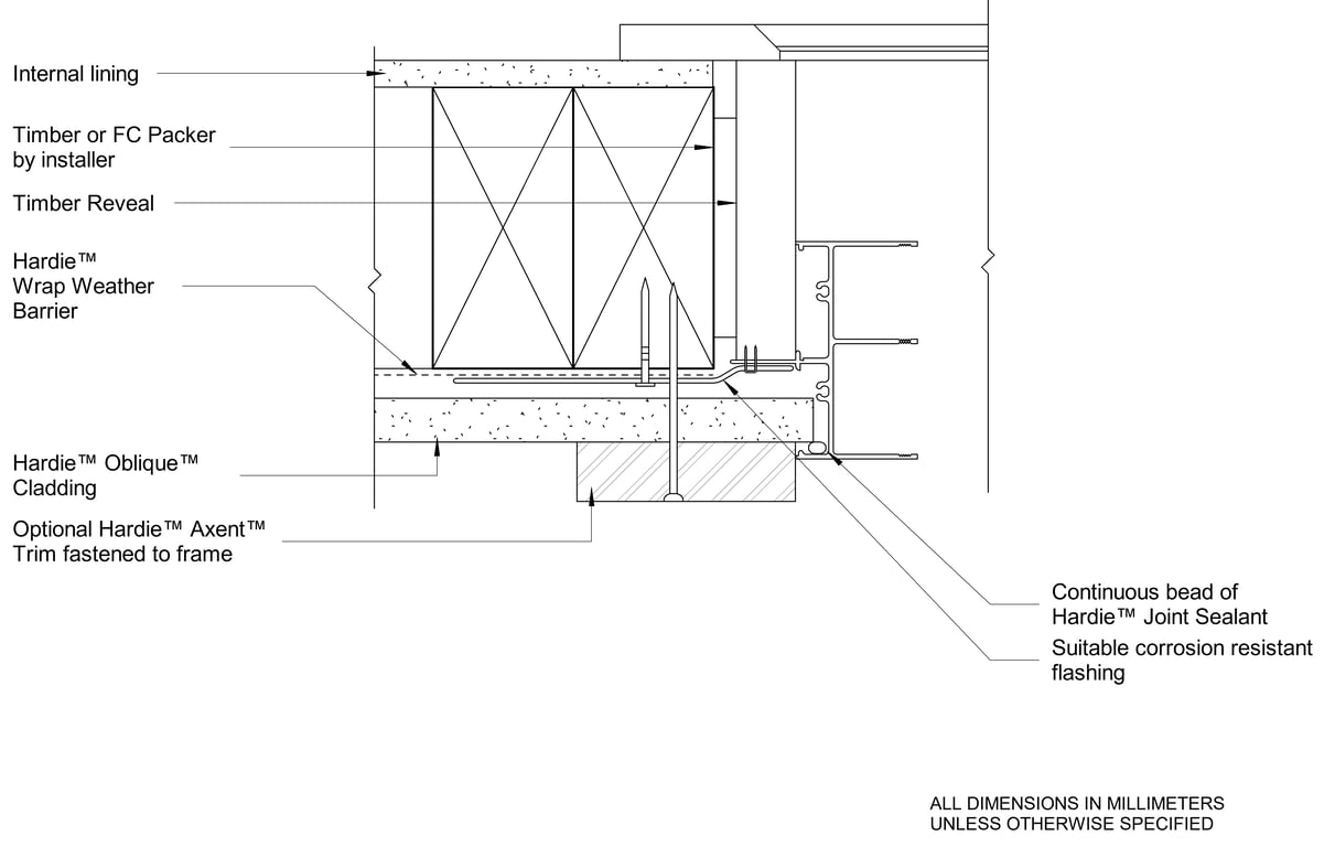
AU-STRIAFT-T-DF-039 - EXTERNAL BOX CORNER

 Image of AU-STRIAFT-T-DF-039 - EXTERNAL BOX CORNER

Detail Download. 2D Details / Drafting Views accompany the 3D content and allow for detailed technical construction documentation.

James Hardie Logo

Connect with the Manufacturer

RESEARCH PRODUCT