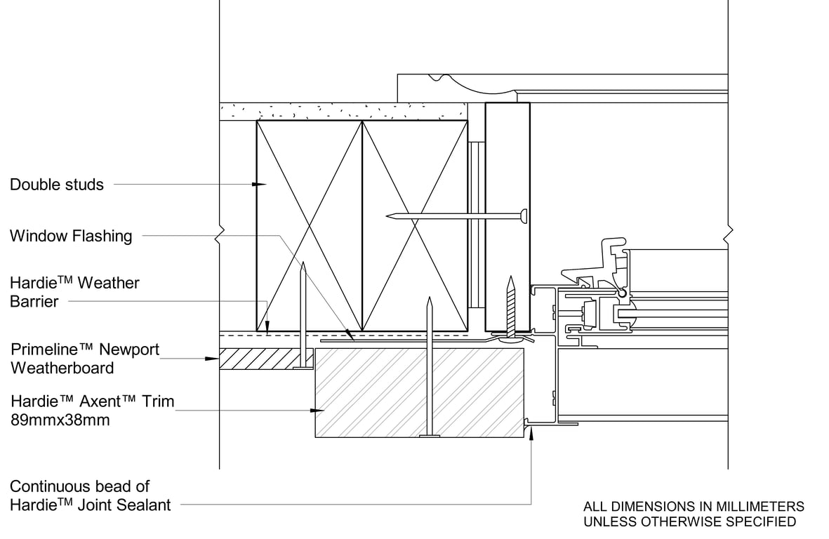
AU-STRIA-T-DF-038 - EXTERNAL TRIM CORNER

 Image of AU-STRIA-T-DF-038 - EXTERNAL TRIM CORNER

Detail Download. 2D Details / Drafting Views accompany the 3D content and allow for detailed technical construction documentation.