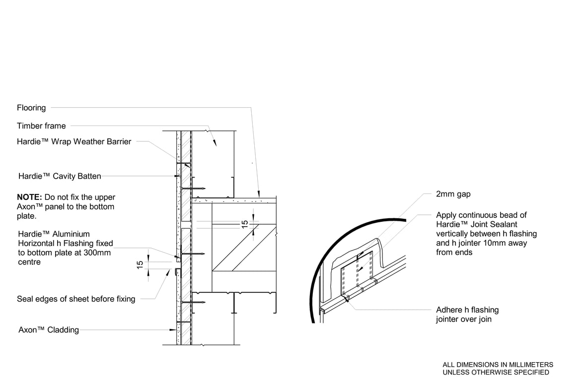
AU-STRIA-T-CFFC-029 - ON-STUD JOINTING OF BATTENS

 Image of AU-STRIA-T-CFFC-029 - ON-STUD JOINTING OF BATTENS

Detail Download. 2D Details / Drafting Views accompany the 3D content and allow for detailed technical construction documentation.

James Hardie Logo

Connect with the Manufacturer

RESEARCH PRODUCT