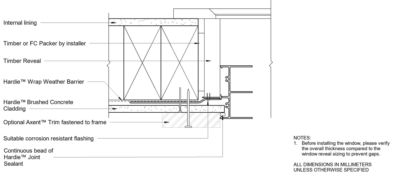
AU-PRLN-T-CFTB-004-02 - EXTERNAL CORNER SNAP ON CORNER OPTION

 Image of AU-PRLN-T-CFTB-004-02 - EXTERNAL CORNER SNAP ON CORNER OPTION

Detail Download. 2D Details / Drafting Views accompany the 3D content and allow for detailed technical construction documentation.