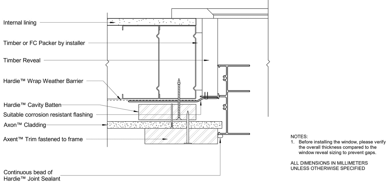
AU-PRLN-T-CFTB-004-01 - EXTERNAL SNAP ON CORNER OPTION

 Image of AU-PRLN-T-CFTB-004-01 - EXTERNAL SNAP ON CORNER OPTION

Detail Download. 2D Details / Drafting Views accompany the 3D content and allow for detailed technical construction documentation.

James Hardie Logo

Connect with the Manufacturer

RESEARCH PRODUCT