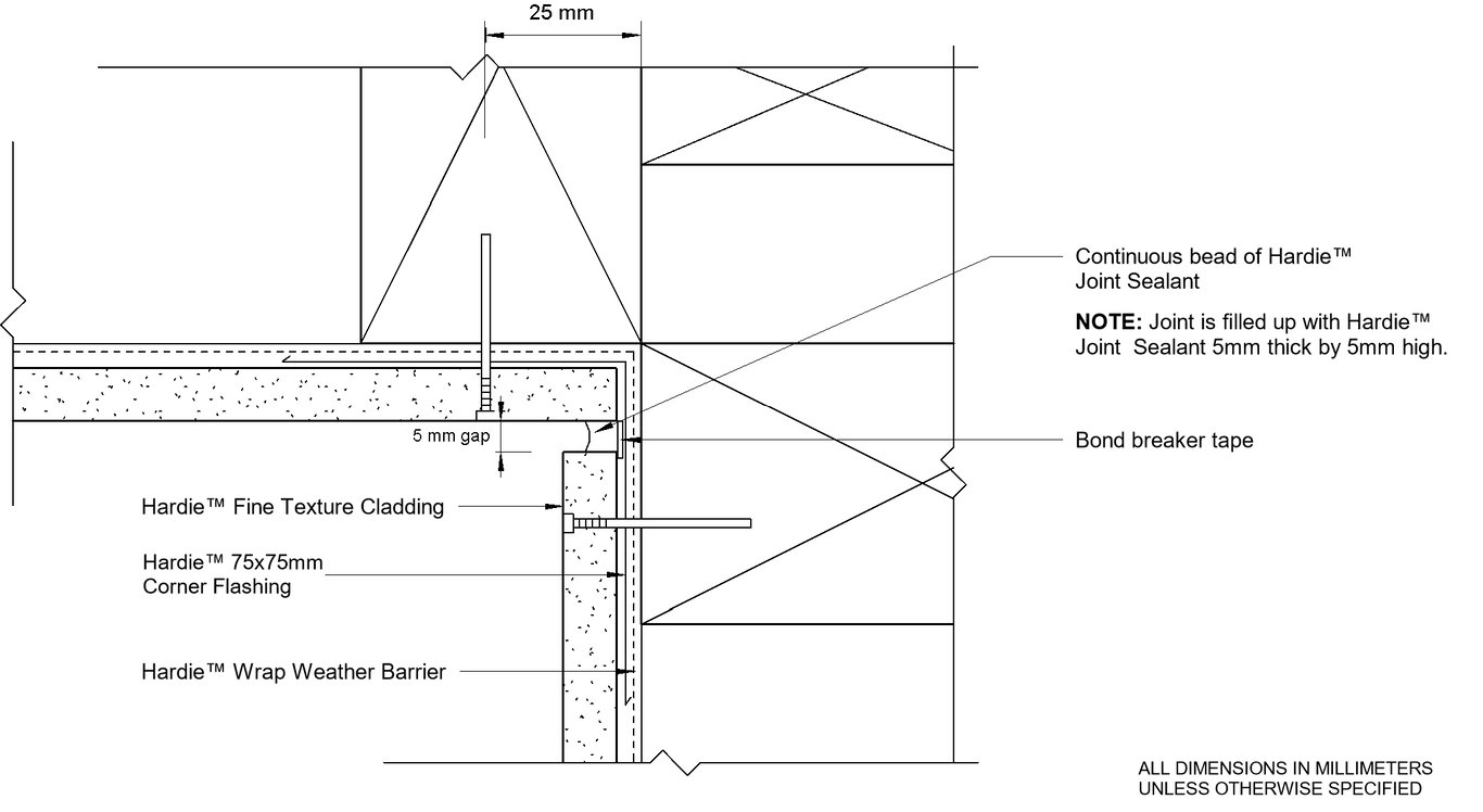
AU-PRLN-T-CFFC-001 - SLAB EAVE JUNCTION

 Image of AU-PRLN-T-CFFC-001 - SLAB EAVE JUNCTION

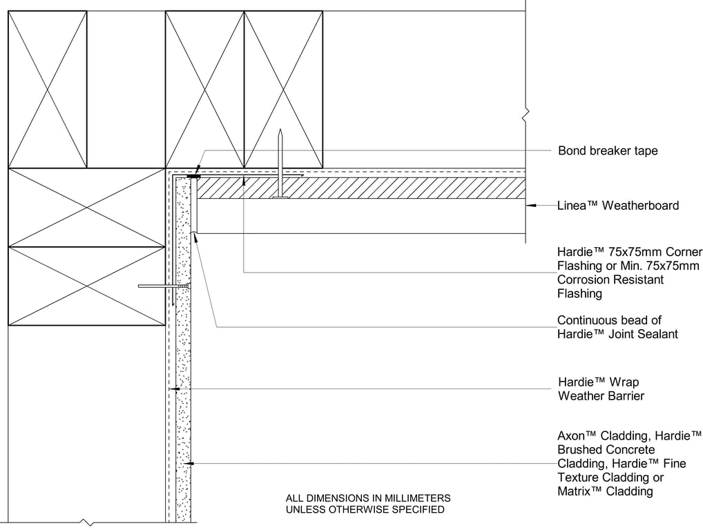
Detail Download. 2D Details / Drafting Views accompany the 3D content and allow for detailed technical construction documentation.

James Hardie Logo

Connect with the Manufacturer

RESEARCH PRODUCT