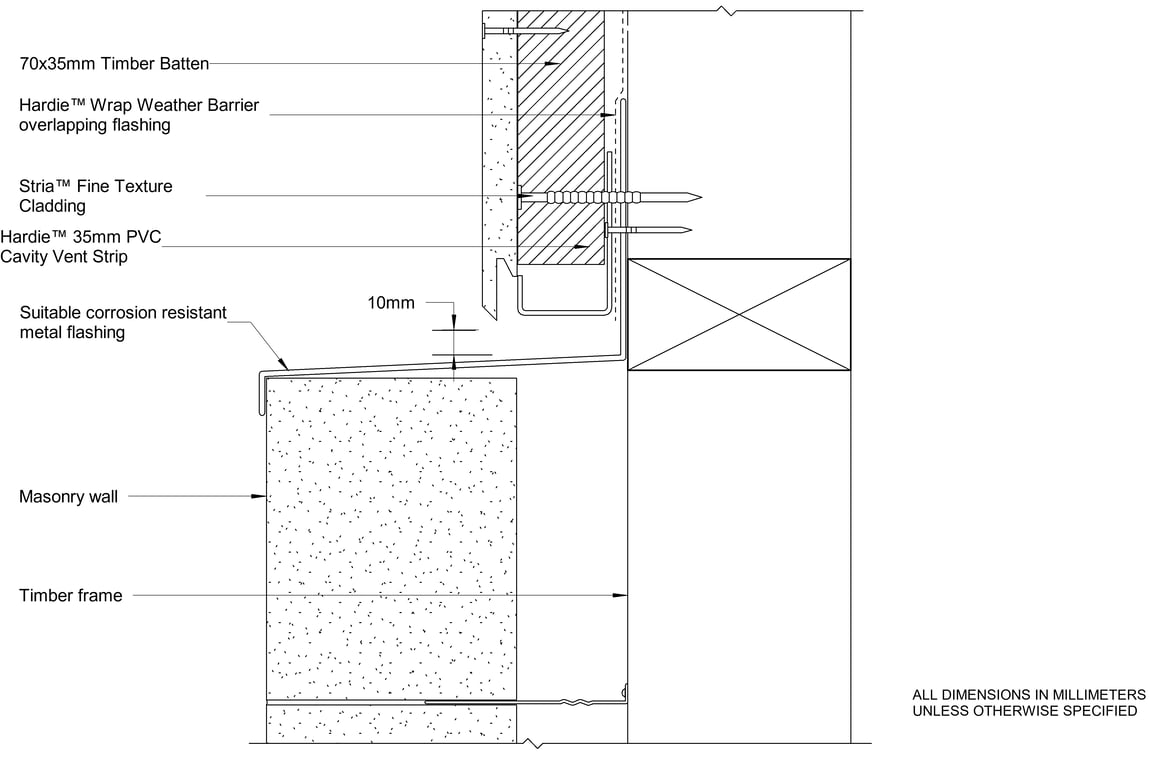
AU-PRLN-S-CFTB-002 - SLAB JUNCTION ALTERNATIVE

 Image of AU-PRLN-S-CFTB-002 - SLAB JUNCTION ALTERNATIVE

Detail Download. 2D Details / Drafting Views accompany the 3D content and allow for detailed technical construction documentation.

James Hardie Logo

Connect with the Manufacturer

RESEARCH PRODUCT