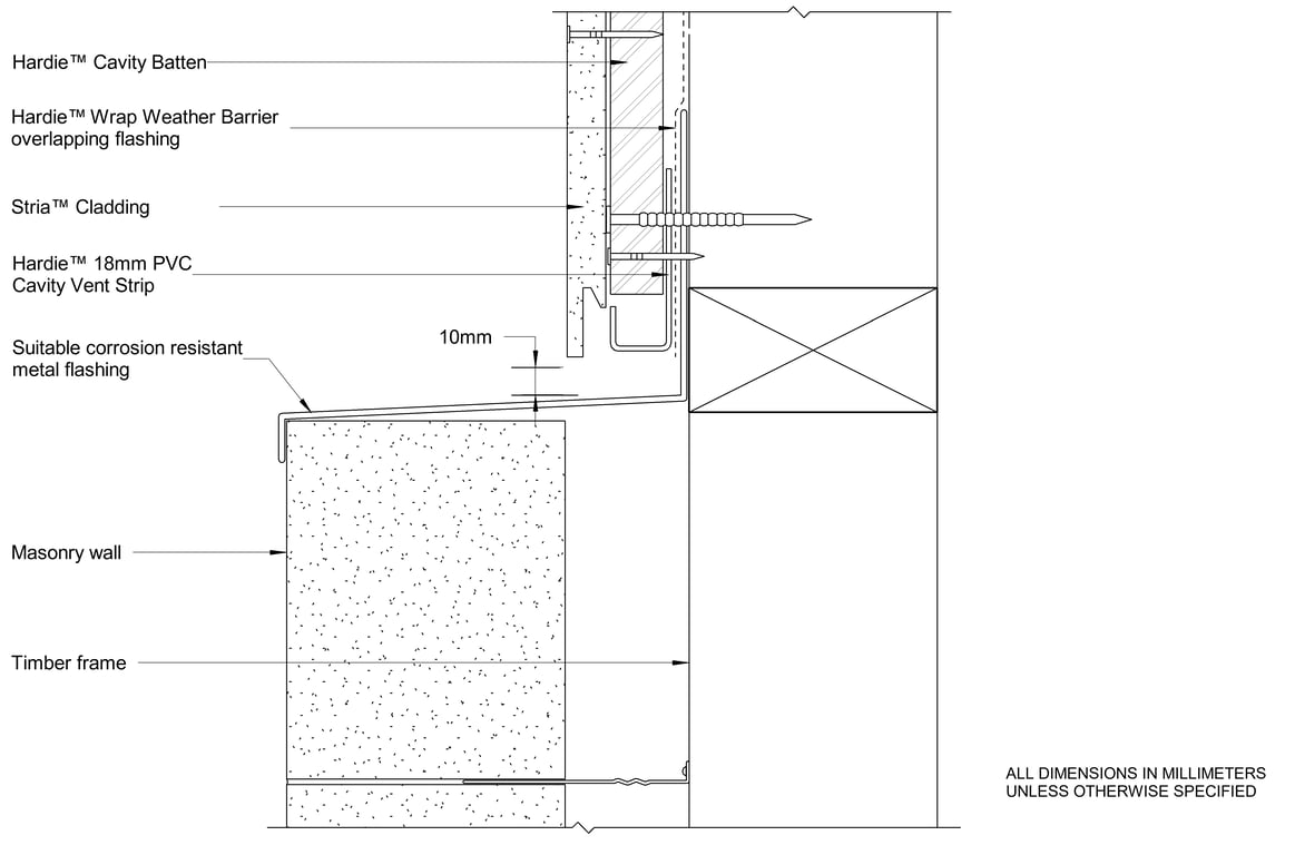
AU-OBLIQUE-T-CFTB-010 - OFF-STUD JOINT

 Image of AU-OBLIQUE-T-CFTB-010 - OFF-STUD JOINT

Detail Download. 2D Details / Drafting Views accompany the 3D content and allow for detailed technical construction documentation.