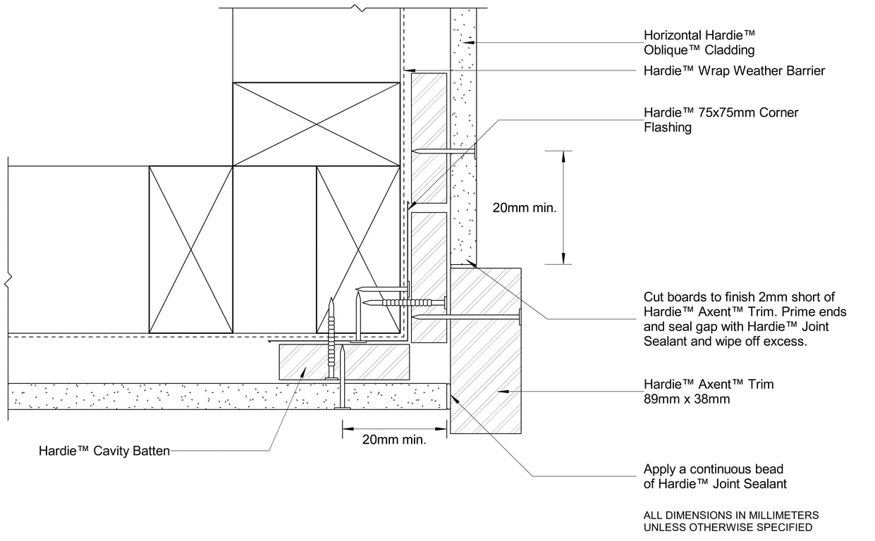
AU-OBLIQUE-T-CFFC-031 - ON-STUD STAGGERED JOINTING OF BATTENS

 Image of AU-OBLIQUE-T-CFFC-031 - ON-STUD STAGGERED JOINTING OF BATTENS

Detail Download. 2D Details / Drafting Views accompany the 3D content and allow for detailed technical construction documentation.