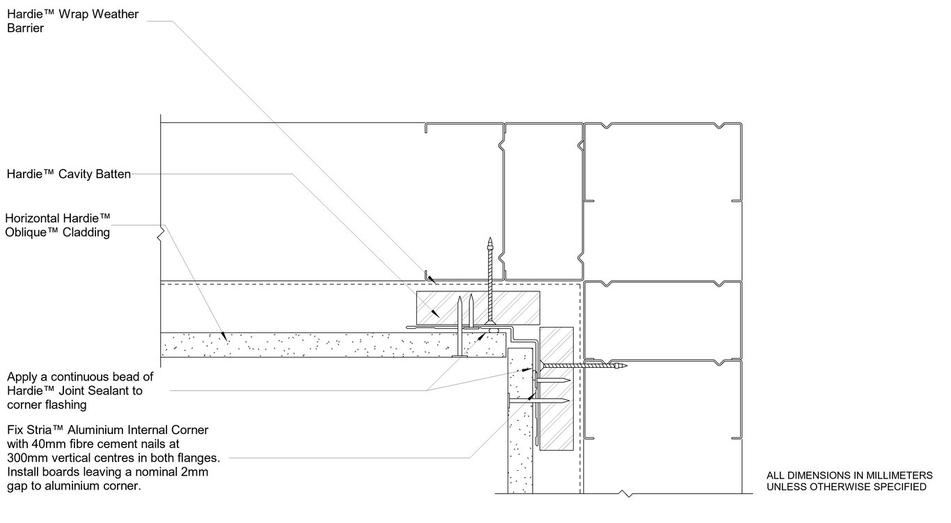
AU-OBLIQUE-T-CFFC-023 - VERTICAL BUTT JOINT DETAIL

 Image of AU-OBLIQUE-T-CFFC-023 - VERTICAL BUTT JOINT DETAIL

Detail Download. 2D Details / Drafting Views accompany the 3D content and allow for detailed technical construction documentation.

James Hardie Logo

Connect with the Manufacturer

RESEARCH PRODUCT