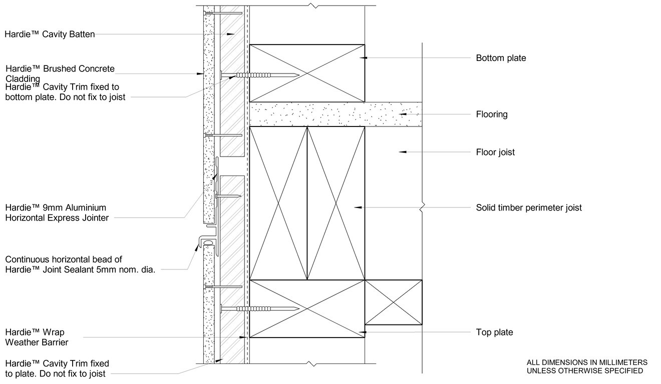
AU-OBLIQUE-T-CFFC-018 - INTERNAL CORNER

 Image of AU-OBLIQUE-T-CFFC-018 - INTERNAL CORNER

Detail Download. 2D Details / Drafting Views accompany the 3D content and allow for detailed technical construction documentation.