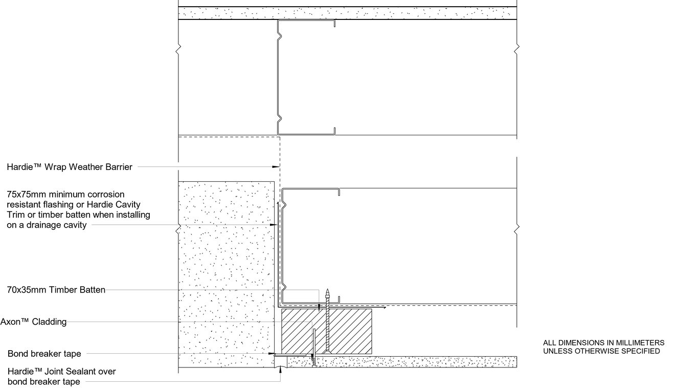
AU-OBLIQUE-S-CFFC-025 - WINDOW HEAD AND SILL - TRIM

 Image of AU-OBLIQUE-S-CFFC-025 - WINDOW HEAD AND SILL - TRIM

Detail Download. 2D Details / Drafting Views accompany the 3D content and allow for detailed technical construction documentation.

James Hardie Logo

Connect with the Manufacturer

RESEARCH PRODUCT