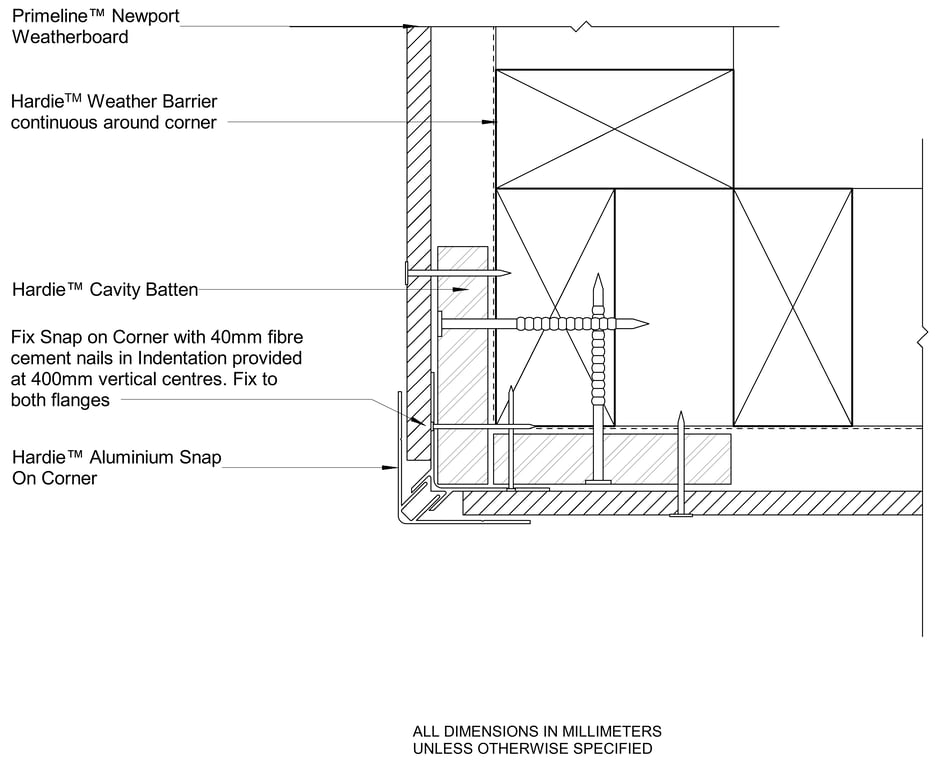
AU-MATRIX-T-008 - SLAB-EAVES DETAIL

 Image of AU-MATRIX-T-008 - SLAB-EAVES DETAIL

Detail Download. 2D Details / Drafting Views accompany the 3D content and allow for detailed technical construction documentation.