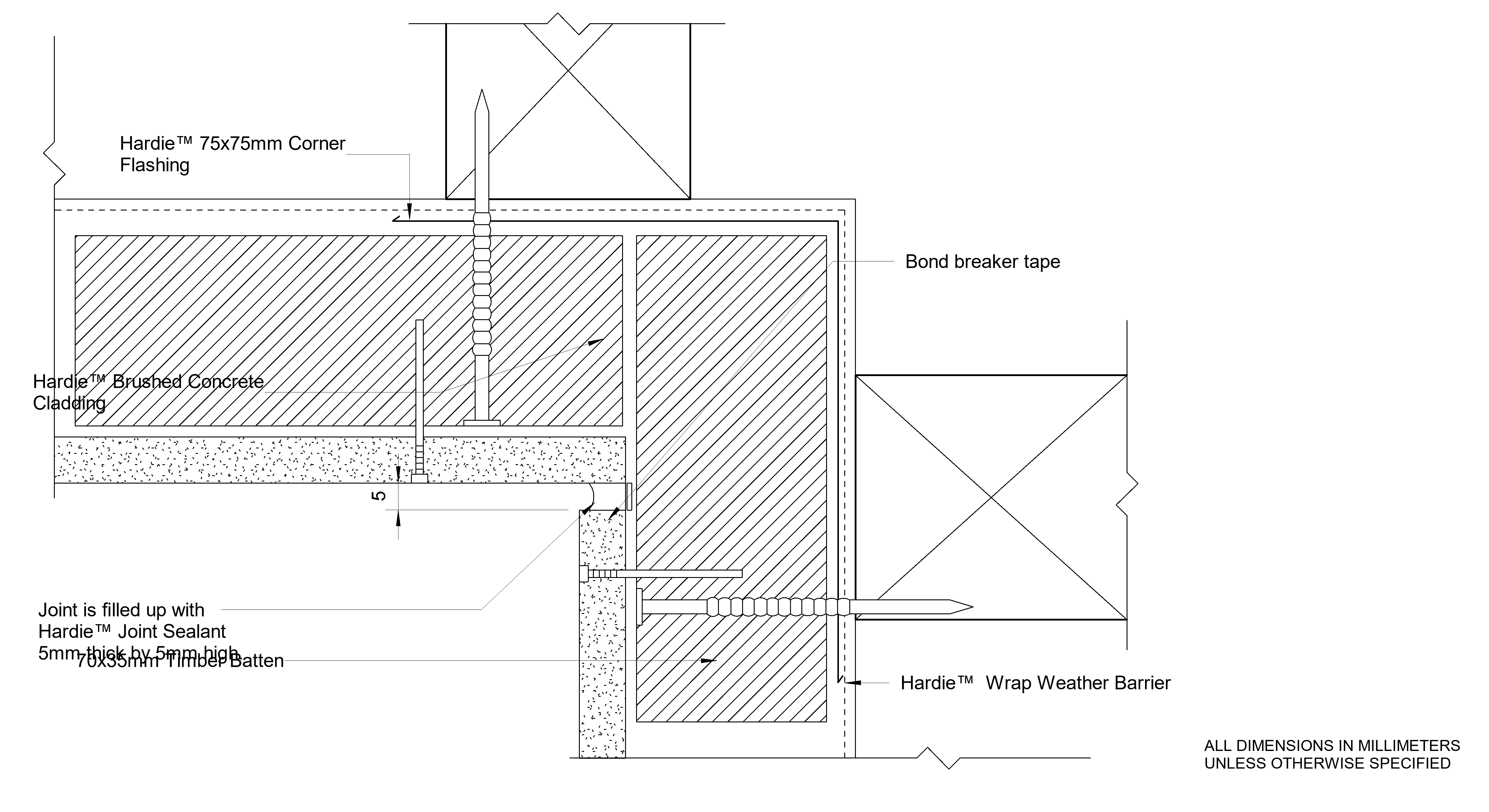
AU-MATRIX-T-006 - COUNTERSUNK SCREW OPTION 3

 Image of AU-MATRIX-T-006 - COUNTERSUNK SCREW OPTION 3

Detail Download. 2D Details / Drafting Views accompany the 3D content and allow for detailed technical construction documentation.

James Hardie Logo

Connect with the Manufacturer

RESEARCH PRODUCT