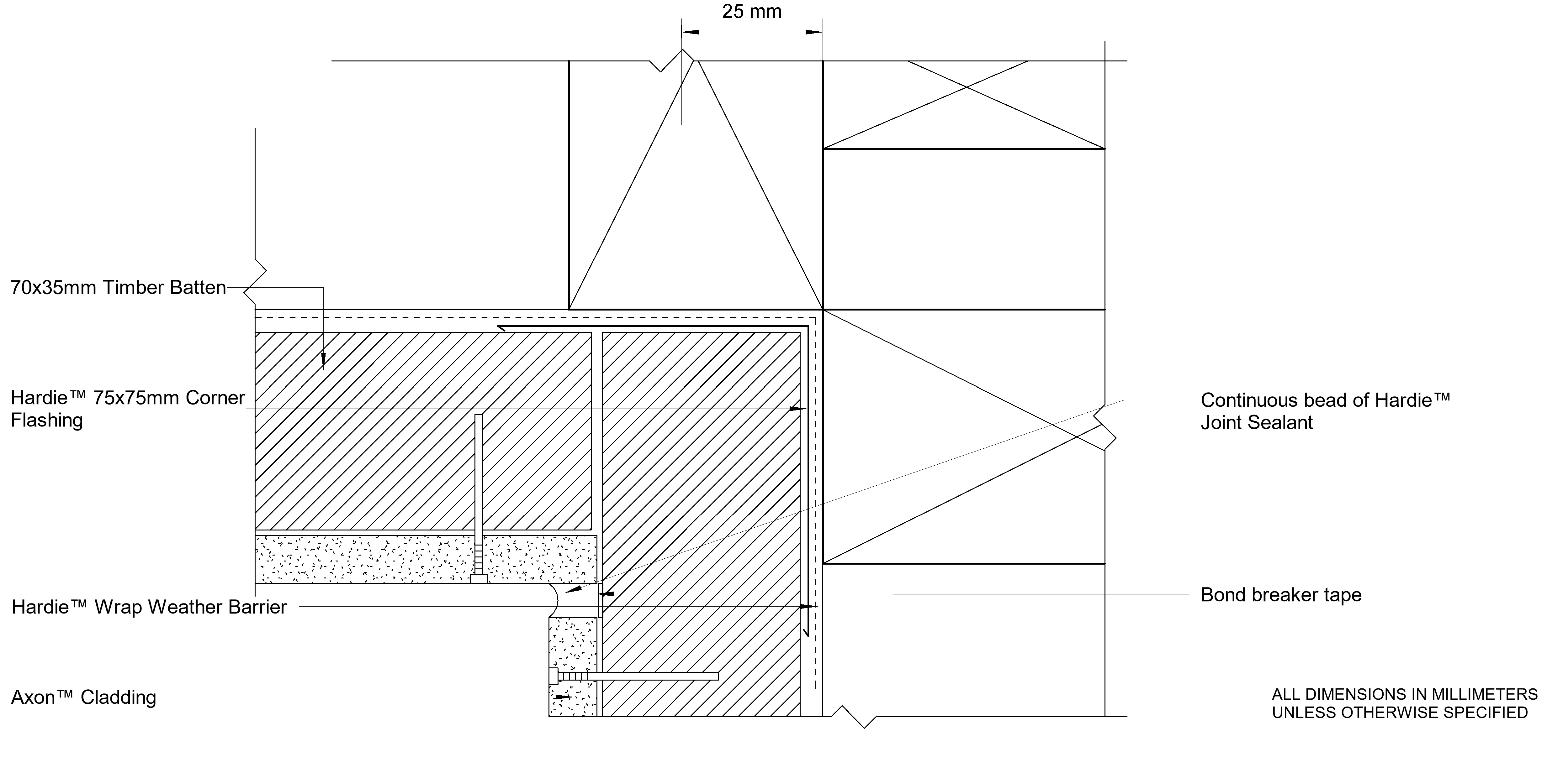
AU-MATRIX-S-009 - WINDOW HEAD-SILL DETAIL

 Image of AU-MATRIX-S-009 - WINDOW HEAD-SILL DETAIL

Detail Download. 2D Details / Drafting Views accompany the 3D content and allow for detailed technical construction documentation.