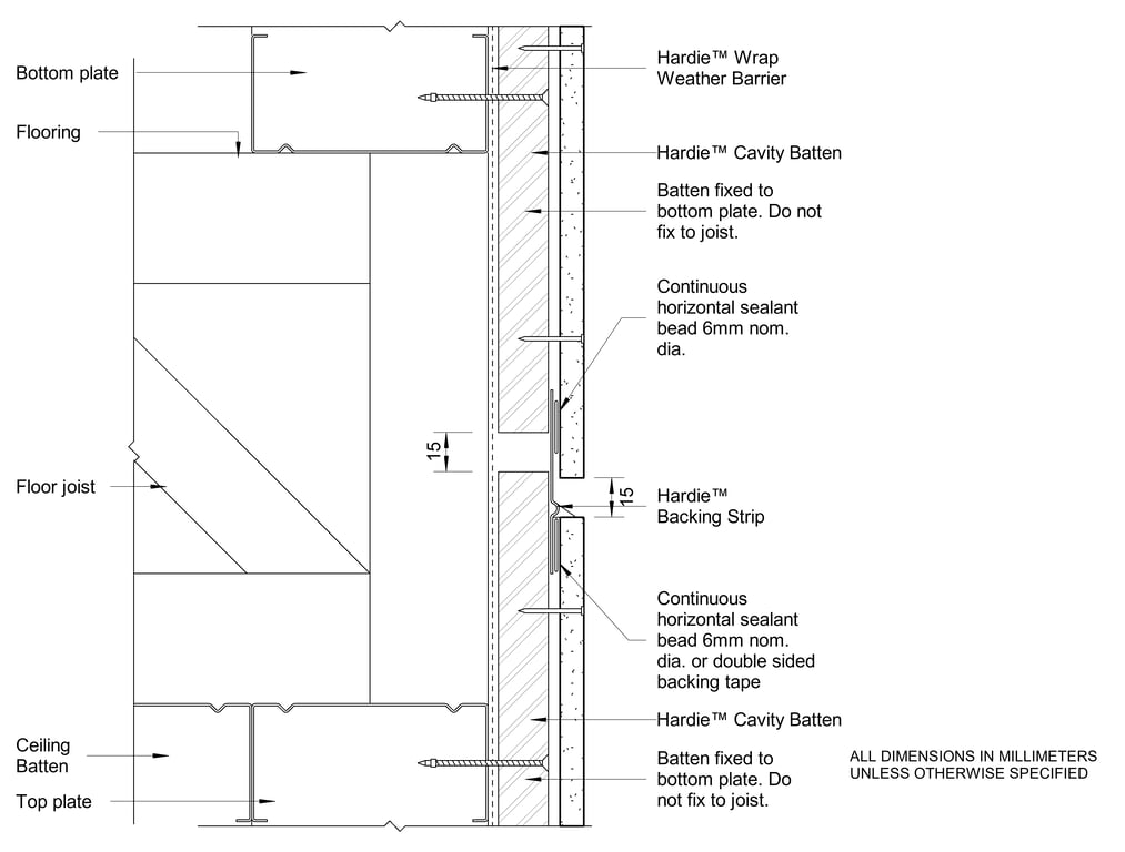
AU-LINEA-T-CFTB-007 - NOTCH AND SCRIBE

 Image of AU-LINEA-T-CFTB-007 - NOTCH AND SCRIBE

Detail Download. 2D Details / Drafting Views accompany the 3D content and allow for detailed technical construction documentation.