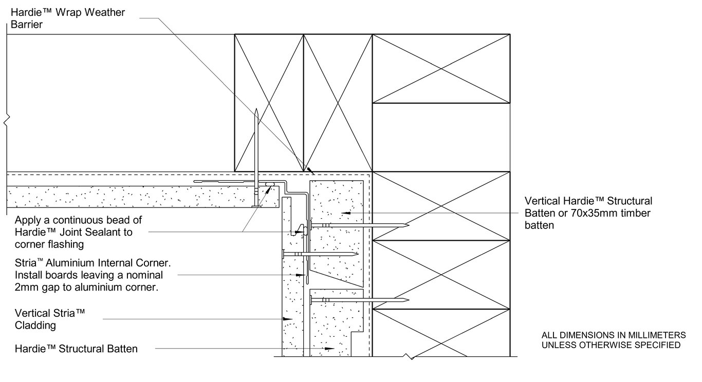
AU-LINEA-T-CFFC-004 - EXTERNAL MITRE CORNER

 Image of AU-LINEA-T-CFFC-004 - EXTERNAL MITRE CORNER

Detail Download. 2D Details / Drafting Views accompany the 3D content and allow for detailed technical construction documentation.