• Home
  • Content
  • For Manufacturers
  • For Designers
  • Plug-In
  • About
  • News
  • Contact
  • Content
  • James Hardie
  • Cladding
  • Cladding
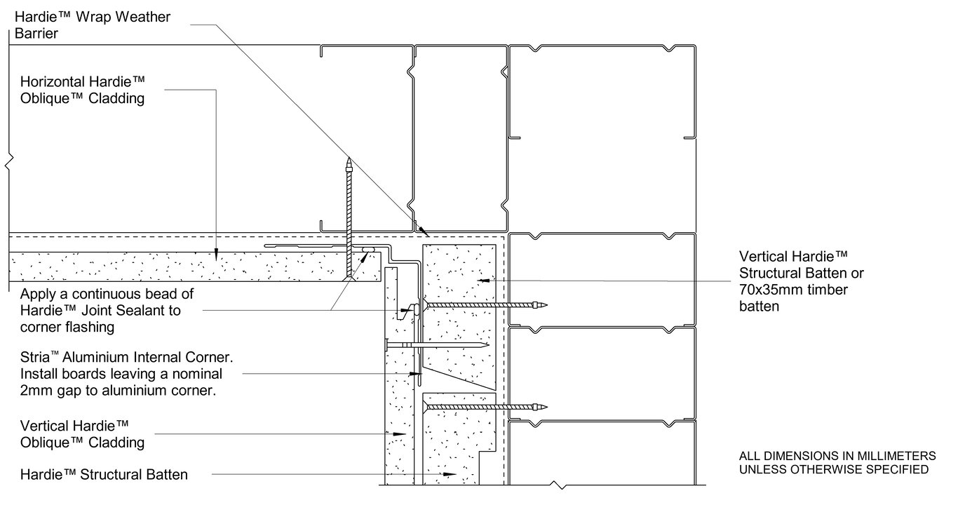
  • AU-LINEA-S-DF-011 - SLIMLINE BOX EXTERNAL CORNER

AU-LINEA-S-DF-011 - SLIMLINE BOX EXTERNAL CORNER

 Image of AU-LINEA-S-DF-011 - SLIMLINE BOX EXTERNAL CORNER

Detail Download. 2D Details / Drafting Views accompany the 3D content and allow for detailed technical construction documentation.

James Hardie Logo

Connect with the Manufacturer

RESEARCH PRODUCT

Related content

Navigate to AU-AXON-T-DF-017 - MASONRY (E-G- BRICK) ABUTMENT DETAIL
AU-AXON-T-DF-017 - MASONRY (E-G- BRICK) ABUTMENT DETAIL
Navigate to STRIA FT Timber CFTB On-Stud Jointing Of Batten On 45mm Timber Frames
STRIA FT Timber CFTB On-Stud Jointing Of Batten On 45mm Timber Frames
Navigate to STRIA Steel DF External Box Corner
STRIA Steel DF External Box Corner
Navigate to AU-AXON-S-CFTB-008 - SEALANT FILL INTERNAL CORNER OPTION 1
AU-AXON-S-CFTB-008 - SEALANT FILL INTERNAL CORNER OPTION 1
Navigate to OBLIQUE Steel CFFC Internal Corner Between Vertical And Horizontally Oriented Boards
OBLIQUE Steel CFFC Internal Corner Between Vertical And Horizontally Oriented Boards
Navigate to AU-HBC-T-DF-004 - UPPER FLOOR JUNCTION OPTION 2
AU-HBC-T-DF-004 - UPPER FLOOR JUNCTION OPTION 2
Navigate to AU-HAC-PANEL BOARD-CF-014 - PANEL TO WEATHERBOARD - EXTERNAL CORNER VERTICAL JUNCTION CAVITY FIX
AU-HAC-PANEL BOARD-CF-014 - PANEL TO WEATHERBOARD - EXTERNAL CORNER VERTICAL JUNCTION CAVITY FIX
Navigate to STRIA FT Timber CFTB Internal Mitre Corner
STRIA FT Timber CFTB Internal Mitre Corner
 
 

Footer

Start downloading quality free BIM content!

X
Facebook
LinkedIn
Instagram
REGISTER FREE NOW

Explore

  • Home
  • Search: Products
  • Search: Brands
  • For Manufacturers
  • For Designers
  • About Us
  • Contact Us

Categories

  • Plumbing Fixtures
  • Washroom Accessories
  • Lighting
  • Materials
  • Furniture
  • Piping

© 2026 BIMcontent.com. All rights reserved.

|

Privacy Policy

|

Terms of Use
Tags, click a tag to view all matching products
Get the BIMcontent Plug-In for Revit® to direct insert
Add to List