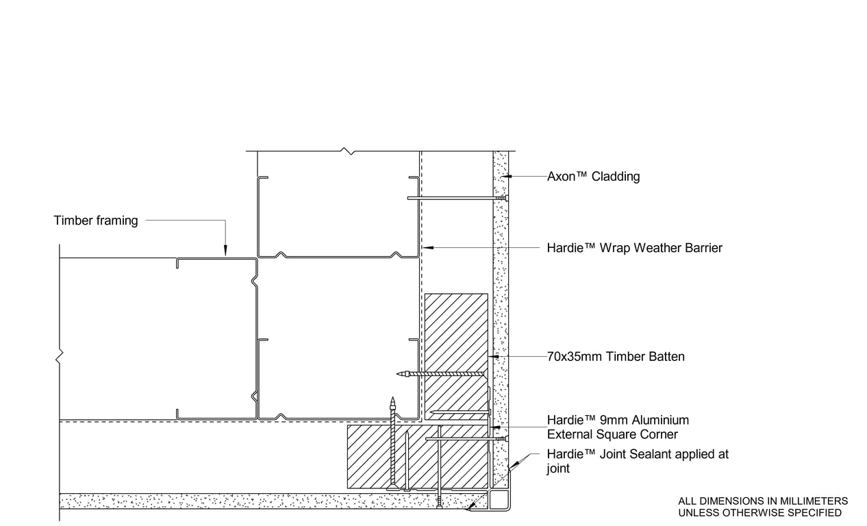
AU-LINEA-S-CFTB-003 - CORNER SOAKER OPTION

 Image of AU-LINEA-S-CFTB-003 - CORNER SOAKER OPTION

Detail Download. 2D Details / Drafting Views accompany the 3D content and allow for detailed technical construction documentation.