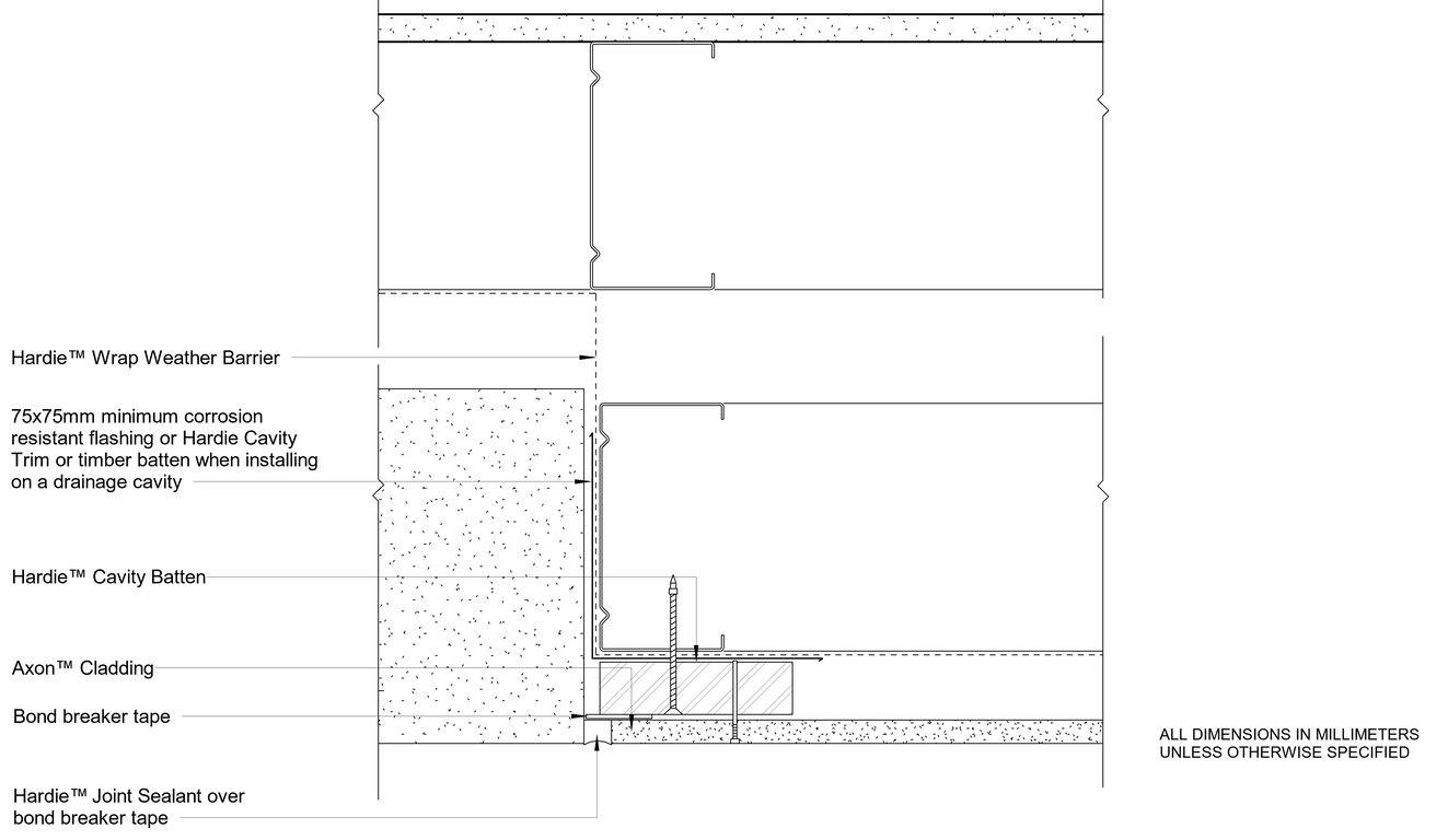
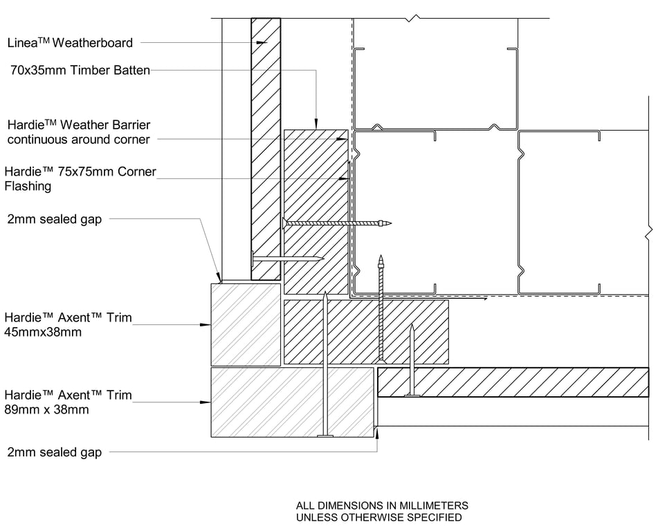
AU-LINEA-S-CFFC-011 - SLIMLINE BOX EXTERNAL CORNER

 Image of AU-LINEA-S-CFFC-011 - SLIMLINE BOX EXTERNAL CORNER

Detail Download. 2D Details / Drafting Views accompany the 3D content and allow for detailed technical construction documentation.