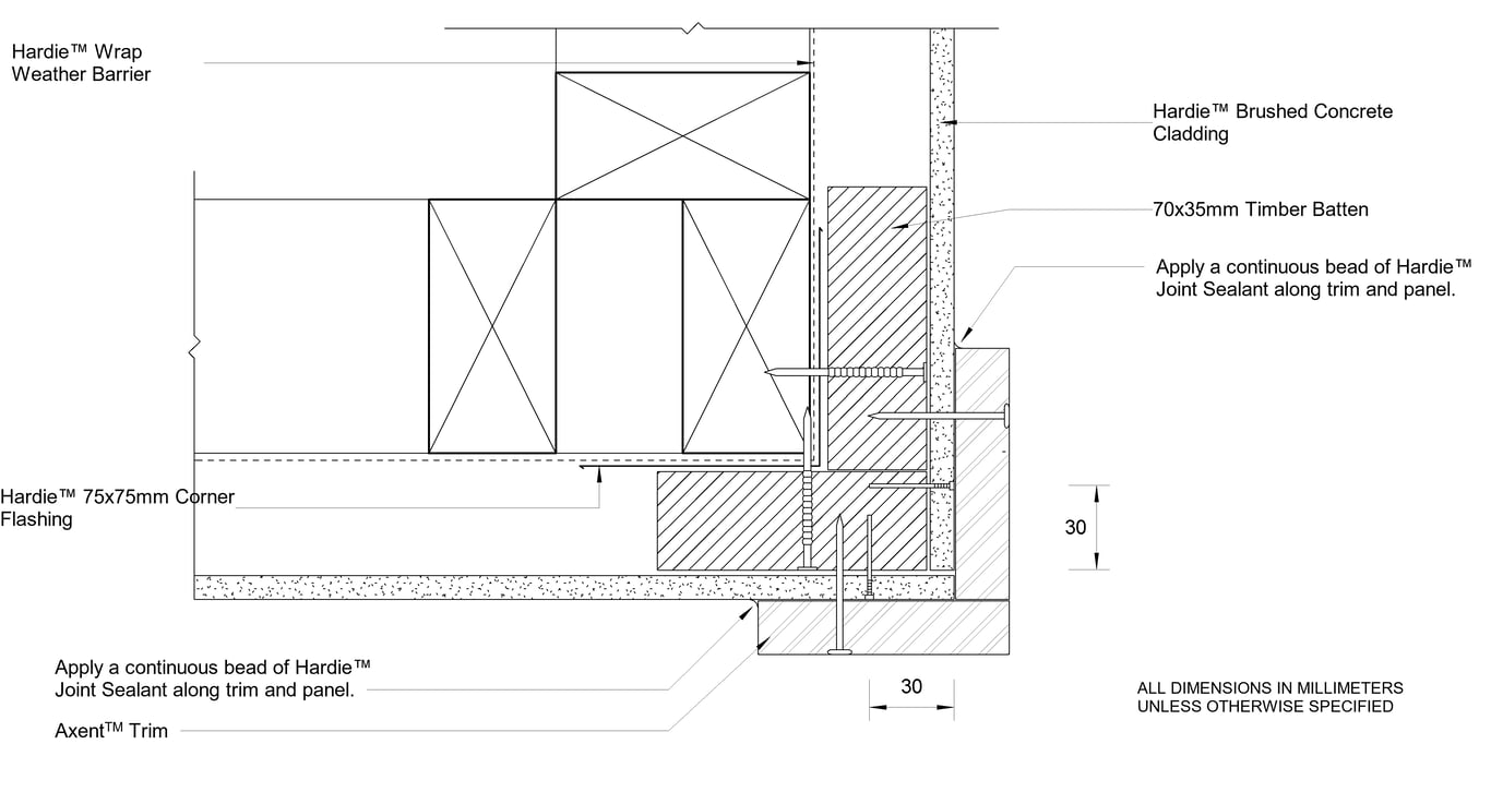
AU-LINEA-S-CFFC-005 - FACE FIXING OPTION

 Image of AU-LINEA-S-CFFC-005 - FACE FIXING OPTION

Detail Download. 2D Details / Drafting Views accompany the 3D content and allow for detailed technical construction documentation.

James Hardie Logo

Connect with the Manufacturer

RESEARCH PRODUCT