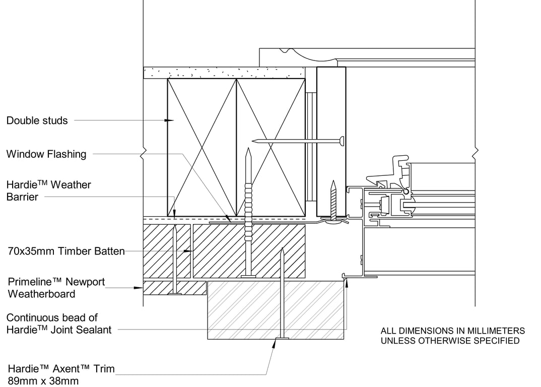
AU-HFTC-T-DF-021 - WINDOW JAMB - TRIM

 Image of AU-HFTC-T-DF-021 - WINDOW JAMB - TRIM

Detail Download. 2D Details / Drafting Views accompany the 3D content and allow for detailed technical construction documentation.