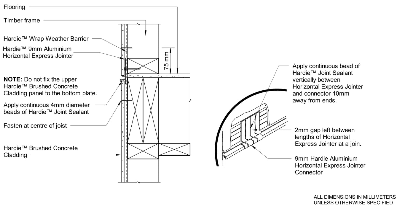
AU-HFTC-T-DF-001 - SLAB EAVE JUNCTION

 Image of AU-HFTC-T-DF-001 - SLAB EAVE JUNCTION

Detail Download. 2D Details / Drafting Views accompany the 3D content and allow for detailed technical construction documentation.

James Hardie Logo

Connect with the Manufacturer

RESEARCH PRODUCT