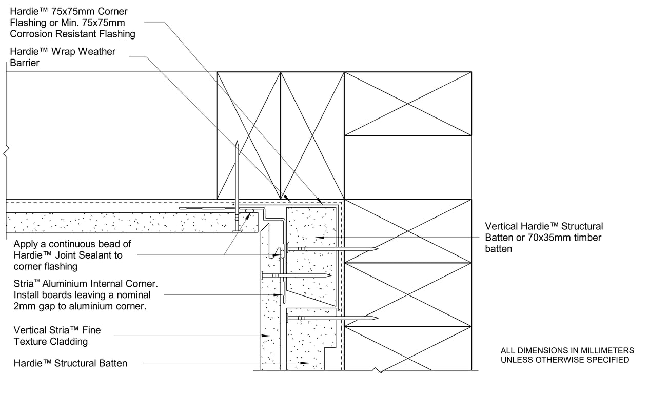
AU-HFTC-T-CFTB-005 - FACADE SOFFIT JUNCTION

 Image of AU-HFTC-T-CFTB-005 - FACADE SOFFIT JUNCTION

Detail Download. 2D Details / Drafting Views accompany the 3D content and allow for detailed technical construction documentation.