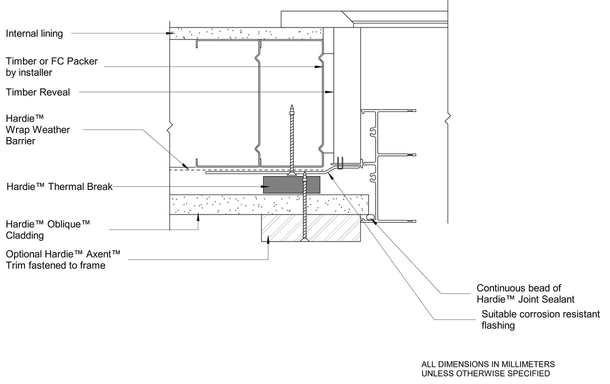
AU-HFTC-T-CFFC-010 - ALUMINIUM CORNER DETAIL - CAVITY TRIM

 Image of AU-HFTC-T-CFFC-010 - ALUMINIUM CORNER DETAIL - CAVITY TRIM

Detail Download. 2D Details / Drafting Views accompany the 3D content and allow for detailed technical construction documentation.

James Hardie Logo

Connect with the Manufacturer

RESEARCH PRODUCT