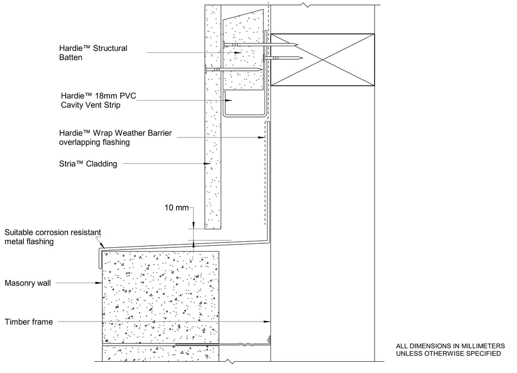
AU-HFTC-T-CFFC-009 - TRIM CORNER OPTION - CAVITY TRIM

 Image of AU-HFTC-T-CFFC-009 - TRIM CORNER OPTION - CAVITY TRIM

Detail Download. 2D Details / Drafting Views accompany the 3D content and allow for detailed technical construction documentation.