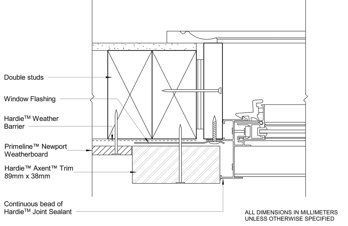
AU-HFTC-T-CFFC-002 - FLOOR LEVEL JUNCTION HORIZONTAL EXPRESS JOINTER

 Image of AU-HFTC-T-CFFC-002 - FLOOR LEVEL JUNCTION HORIZONTAL EXPRESS JOINTER

Detail Download. 2D Details / Drafting Views accompany the 3D content and allow for detailed technical construction documentation.

James Hardie Logo

Connect with the Manufacturer

RESEARCH PRODUCT