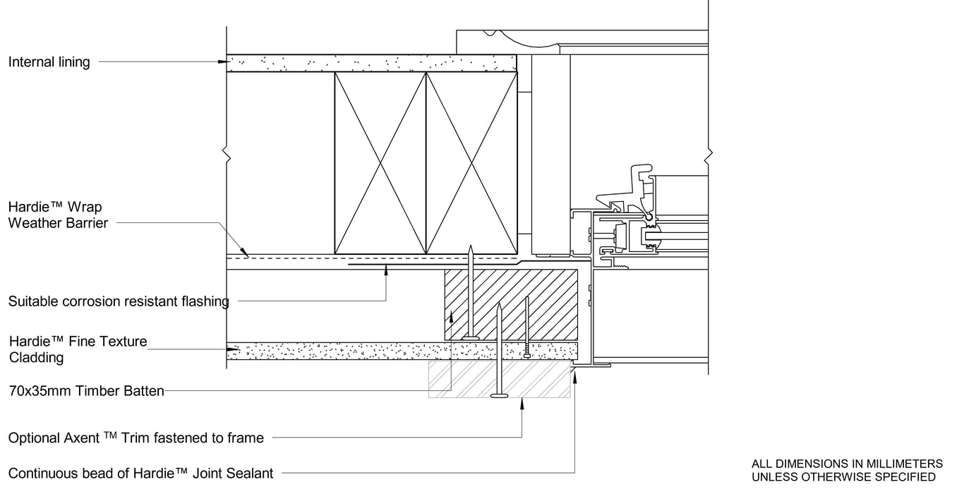
AU-HFTC-T-CFFC-001 - ALTERNATIVE SLAB EDGE DETAILS

 Image of AU-HFTC-T-CFFC-001 - ALTERNATIVE SLAB EDGE DETAILS

Detail Download. 2D Details / Drafting Views accompany the 3D content and allow for detailed technical construction documentation.