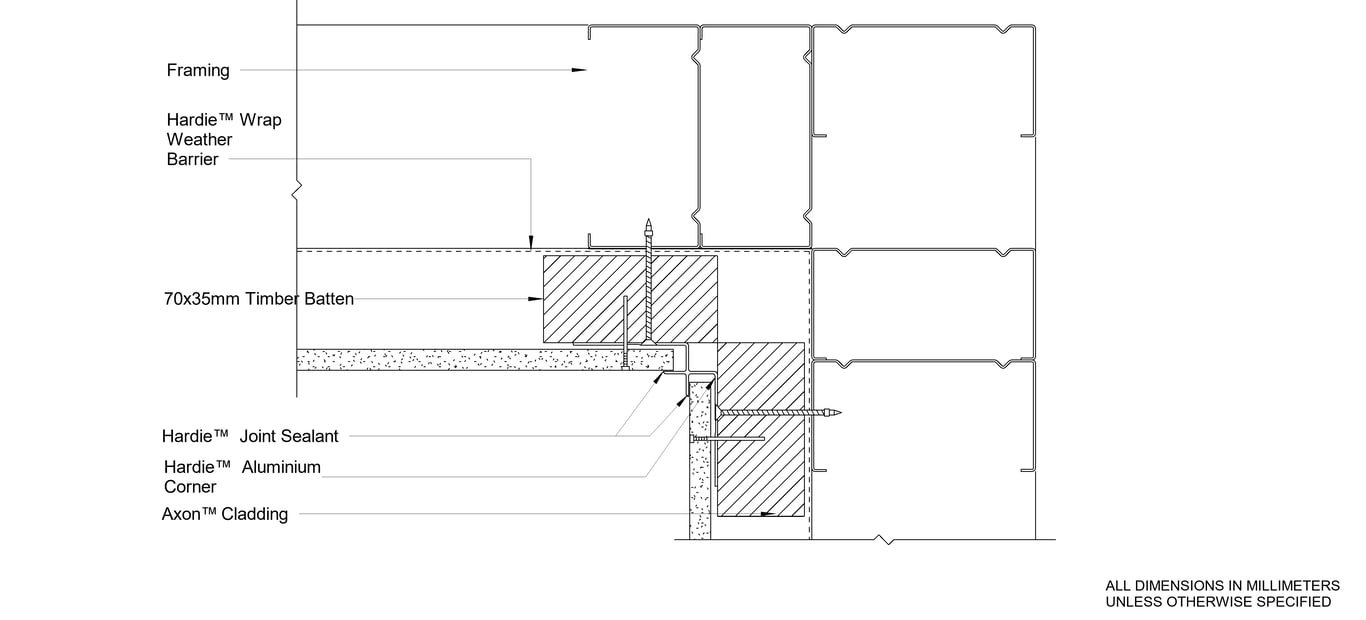
AU-HFTC-S-CFTB-005 - FACADE SOFFIT JUNCTION

 Image of AU-HFTC-S-CFTB-005 - FACADE SOFFIT JUNCTION

Detail Download. 2D Details / Drafting Views accompany the 3D content and allow for detailed technical construction documentation.

James Hardie Logo

Connect with the Manufacturer

RESEARCH PRODUCT