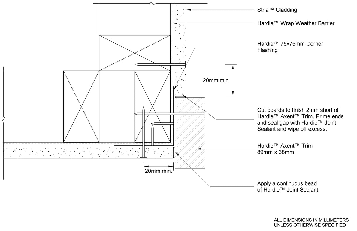
AU-HBC-T-CFFC-014 - FIXING TO TIMBER OR STEEL COLUMN

 Image of AU-HBC-T-CFFC-014 - FIXING TO TIMBER OR STEEL COLUMN

Detail Download. 2D Details / Drafting Views accompany the 3D content and allow for detailed technical construction documentation.