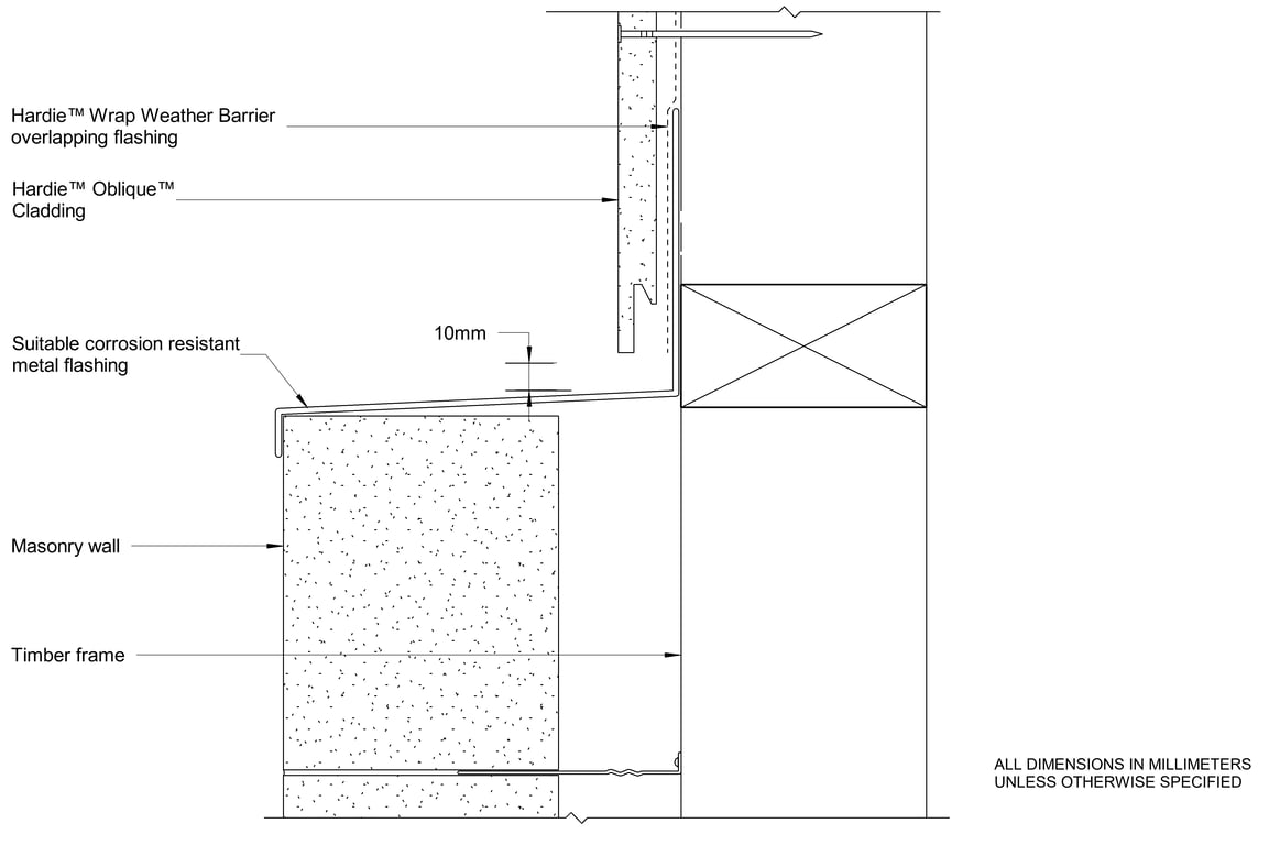
AU-HBC-T-CFFC-006 - VERTICAL BUTT JOINT

 Image of AU-HBC-T-CFFC-006 - VERTICAL BUTT JOINT

Detail Download. 2D Details / Drafting Views accompany the 3D content and allow for detailed technical construction documentation.

James Hardie Logo

Connect with the Manufacturer

RESEARCH PRODUCT