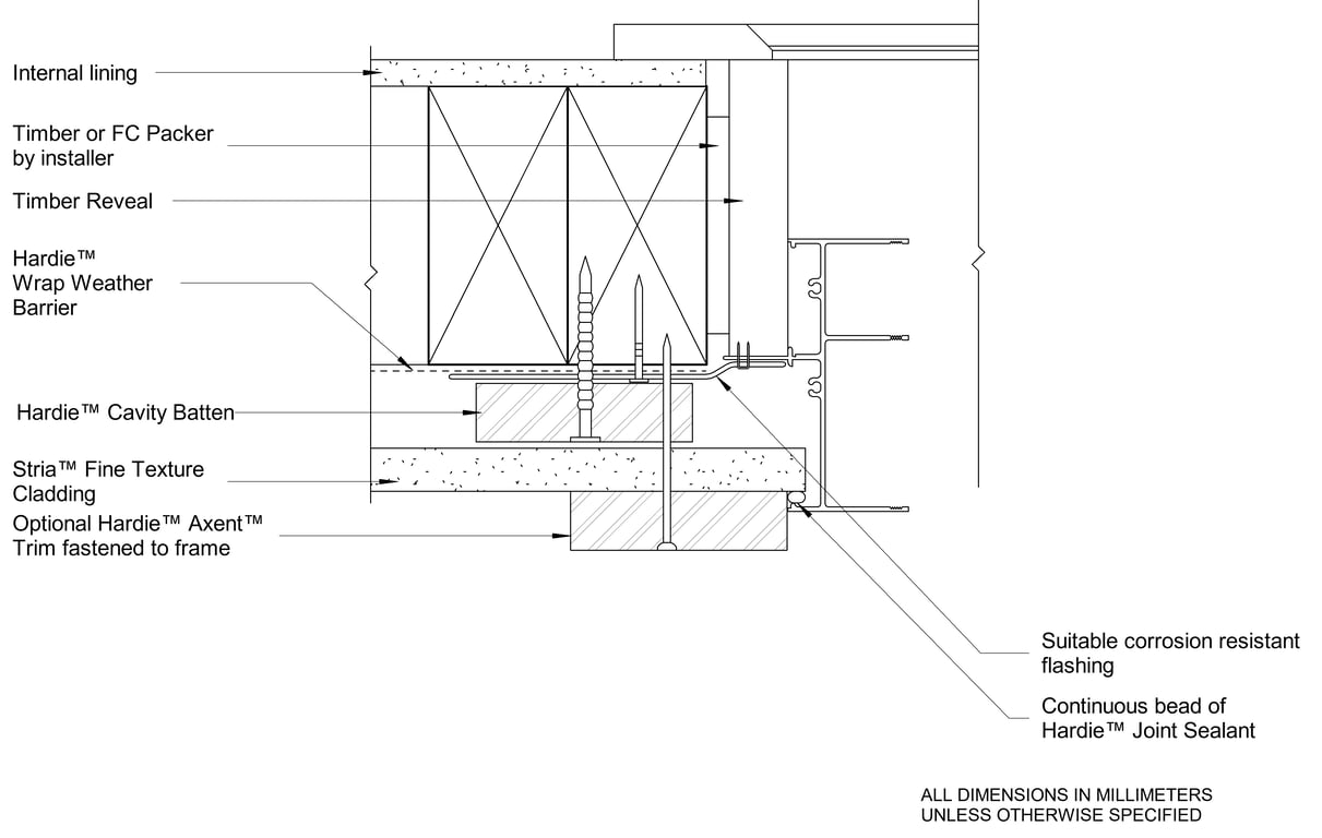
AU-HBC-S-DF-012 - SEALANT FILL OPTION - EXTERNAL CORNER

 Image of AU-HBC-S-DF-012 - SEALANT FILL OPTION - EXTERNAL CORNER

Detail Download. 2D Details / Drafting Views accompany the 3D content and allow for detailed technical construction documentation.

James Hardie Logo

Connect with the Manufacturer

RESEARCH PRODUCT