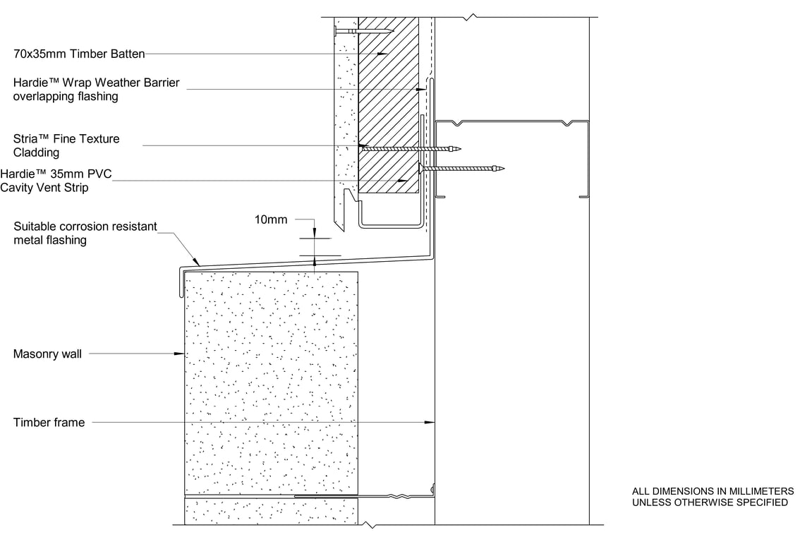
AU-HBC-S-CFTB-007 - ALUMINIUM BOX CORNER OPTION - CAVITY TRIM

 Image of AU-HBC-S-CFTB-007 - ALUMINIUM BOX CORNER OPTION - CAVITY TRIM

Detail Download. 2D Details / Drafting Views accompany the 3D content and allow for detailed technical construction documentation.