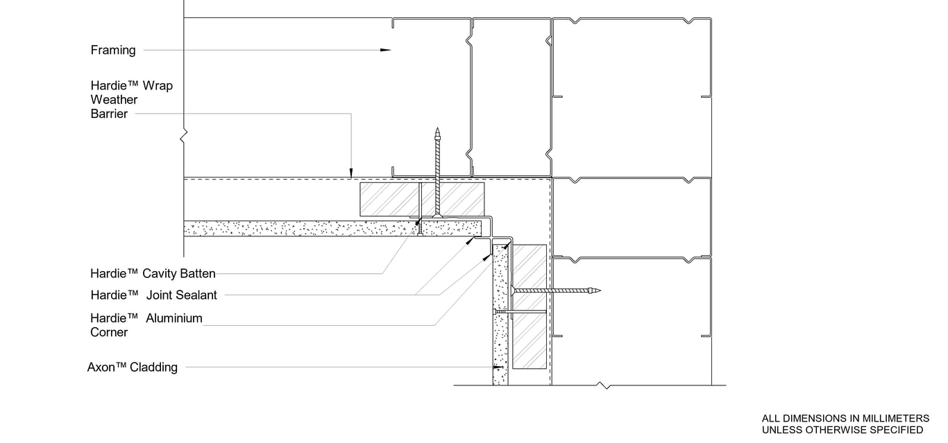
AU-HAC-PANEL PANEL-DF-010 - PANEL TO PANEL - INTERNAL CORNER VERTICAL JUNCTION DIRECT FIX

 Image of AU-HAC-PANEL PANEL-DF-010 - PANEL TO PANEL - INTERNAL CORNER VERTICAL JUNCTION DIRECT FIX

Detail Download. 2D Details / Drafting Views accompany the 3D content and allow for detailed technical construction documentation.

James Hardie Logo

Connect with the Manufacturer

RESEARCH PRODUCT